


163 132 ₽/м²
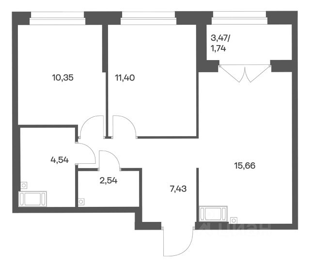
Арт. 129936491 Предлагается просторная квартира (61.3 кв. м) в одном из самых колоритных домов Невского района Квартира: Площадь: 61.3 кв. м. В данной серии домов (602/603) это редкий, увеличенный формат, что дает свободу для перепланировки и дизайна. Планировка: Изолированные комнаты. Кухня типовой площади (~10 кв.м), раздельный санузел, высота потолков 2.55 м . Состояние: Требуется косметический/капитальный ремонт Школа: Абсолютный кирпич — школа 497 находится в соседнем литере А, буквально в одном крыле здания. Водить ребенка через дорогу не нужно . Детские сады: В радиусе 350-500 метров (62, 90) . Магазины: В соседних домах "Пятерочка" и "Магнит" . Для души: Библиотека в этом же доме и Фитнес-клуб . Транспорт (Цифры, которые продают): До метро "Ломоносовская" — 14 минут пешком (930 м) . До метро "Пролетарская" — 4 минуты на транспорте . Остановки: "Народная" и "Октябрьская набережная, д.70" — literally под окнами. Автобусы, маршрутки, троллейбусы до центра и в область . Для автомобиля: Удобный выезд на Народную улицу и КАД. Звоните и записывайтесь на просмотр! Оцените размах Невы с Володарского моста по пути к вашему будущему дому. Купить 3-комнатную квартиру (вторичка) в районе Невский в Санкт-Петербурге.




























































































