Продается полноценная четырехкомнатная квартира, в Московском районе, в ЖК комфорт класса "Триумф парк", по адресу Среднерогатская д.11 стр.1.
Квартира на 20 этаже, с панорамным видом на восток и юг города.
ПРЯМАЯ ПРОДАЖА!
Быстрый выход на сделку. Все документы готовы.
Лучшее предложение по метражу и стоимости кв.м на Средней Рогатке!
Цена подтверждена независимой оценкой - "Петербурская оценочная компания" от 08.04.2026
Расположение - высокоразвитая и уже сформировавшаяся инфраструктура Московского района - близость к ст. м. Звездная (15 минут пешком):
- отличная транспортная доступность;
- удобный выезд на КАД;
- близость к аэропорту Пулково;
- рядом Пулковский парк и сквер Раисы Штрейс, в скором времени появится Дизельный парк;
- развитая сеть велодорожек;
- в шаговой доступности (можно сказать под окнами) - несколько новых школ и детских садов;
- все необходимое (магазины, ТЦ, банкоматы, аптеки, кофейни, салоны красоты) в непосредственной близости;
- закрытый изолированный двор без машин, с детскими площадками;
- подземный паркинг, вход в который возможен из парадной;
- въезд на расположенный, на придомовой территории, закрытый шлагбаумами паркинг с помощью брелока или телефонного звонка.
Дом кирпично-монолитный.
В подъезде 4 лифта (2 пассажирских + 2 грузовых, один из них спускается в подземный паркинг).
6 квартир на этаже.
Эргономичная планировка квартиры с черновой отделкой, позволит создать квартиру для себя и своей семьи с "нуля".
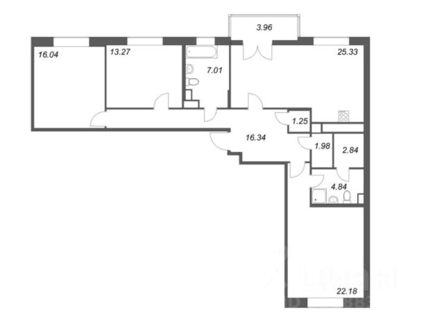
Площадь квартиры - 111,9 кв.м. (без учета площади лоджий - 19.4 кв.м.).
Жилая площадь - 66,3 кв.м. (высота потолков - 2,78 м).
Ведомость помещений :
- кухня - 14 кв.м. (с выходом на кухонную лоджию);
- коридор - 21,9 кв.м.;
- комната/гостиная - 24,4 кв.м. (большое панорамное окно и отдельный выход на кухонную лоджию);
- комната - 13,1 кв.м.;
- комната - 11,5 кв.м. (с выходом на лоджию);
- комната - 17,3 кв.м. (с выходом на лоджию);
- 2 санузла (основной туалет 5,1 кв.м. и гостевой туалет 2.3 кв.м.);
- гардеробная/кладовая - 2,3 кв.м.;
- 2 остекленных лоджии (11,7 кв.м. и 7,7 кв.м.);
Общая площадь - 131,3 кв.м.
Часть стены между кухней и гостинной состоит из газобетона (размеры проема - 2 метра в ширину и полностью до потолка) и не является несущей, что позволяет объеденить помещения сделав большую кухню-гостинную 39 кв.м.
В квартире установлены и функционируют временные унитаз и ванна с сантехникой, для проведения строительных работ, а также есть 2 раскладывающихся дивана.
Задолженностей по коммунальным услугам, каких-либо других проблем имущественного и правового характера у самой недвижимости и ее собственников - нет.
Квартира в собственности более 5 лет.
4 собственника - 2 взрослых и 2 ребенка.
В квартире никто не прописан.
Получено разрешение на прямую продажу от органов опеки и попечительства Московского района.
Нотариальное оформление сделки.
Проведение расчетов через аккредитив.
В договоре - полная цена.
Агентов (без клиентов) - просьба не беспокоить.
Цена окончательная. Торга нет.