Первичная продажа
С отделкой
сдача ГК: 1 кв. 2027 года
Пионерская
10 минут на транспорте
19 489 820 ₽
189 848 ₽/м²
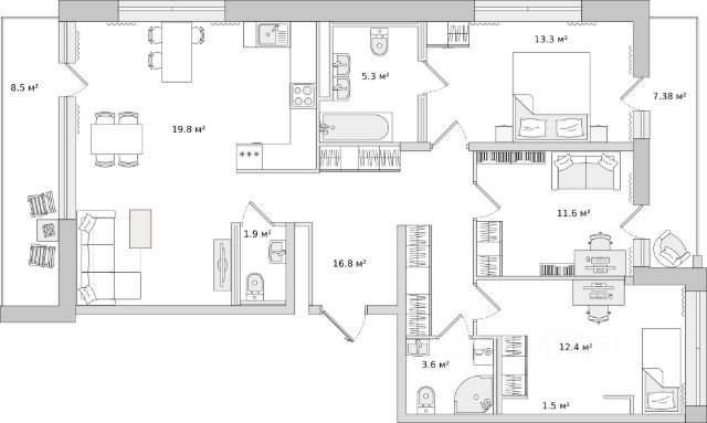
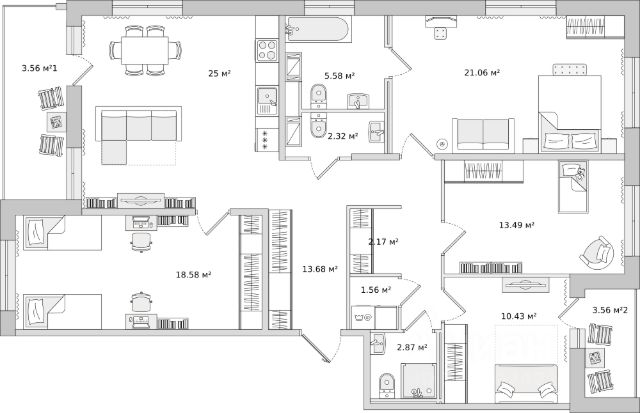
Продаётся трёхкомнатная квартира в жилом комплексе ЦДС Dreamline, Корпус 2.7
ЦЕНА УКАЗАНА С УЧЕТОМ СКИДКИ ЗА НАЛИЧНЫЕ.
При покупке квартиры без участия агентов дарим сертификат новосела в магазин ХОФФ на сумму 50 000 рублей. Им можно оплатить не более 15% от суммы покупки.
Квартиры с чистовой отделкой: на полу ламинат, на стенах обои под покраску, установлены межкомнатные двери, в санузлах везде положена плитка, установлена вся сантехника!
ЦДС Дримлайн — это новый ЖК на Парашютной улице. Первая очередь введена в эксплуатацию, дома второй очереди высокой степени готовности!
Инфраструктура, около дома:
Детский сад для 350 малышей - построен;
Школа для 825 учеников - построена;
Поликлиника и центр общей врачебной практики в соседнем квартале.
В домах есть кладовые, которые можно купить и не устраивать склад на лоджии.
Около дома - многоэтажный паркинг.
Прямая продажа от застройщика Группы ЦДС!
Номер в базе ЦДС: 115844






























































