


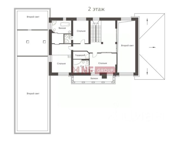
УЧАСТОК: 11 соток ИЖС, в черте города Всеволожск. В тихой тупиковой улице, напротив панорамных окон только березы, никаких соседей. Отсыпан пгс, выровнен, сделан дренаж, посажены шаровидные ивы, подготовлен под посадку газона. Забор выполнен из свай с проф трубой порошковая окраска. Штакетник в шахматном порядке. Ворота шириной 5 метров на электроприводе САМЕ, калитка шириной 1 метр. ДОМ: На фундаменте из Железо Бетонных свай длинной 4 метра, с обвязкой двутавровой балкой установлен Дом, общей площадью с учетом террас и веранд 161 кв.м. Из них теплый контур 80 кв.м., две крытые веранды по 30 кв.м. и терраса вдоль всего дома 21 кв.м.. Дом выполнен в стиле Барнхаус, по каркасной технологии с утеплением 200 мм., оконные рамы и двери деревянные. Гостиная 36 кв.м. Комнаты 17; 15; 10 кв.м. и санузел с ванной комнатой 7 кв.м.. Высота потолка в коньке 3,6 метра. В каждом помещении сделана вентиляция. Полностью укомплектован для жизни всей необходимой мебелью и техникой. После продажи Всё остается в доме! Ничего докупать не придется! Кухонный гарнитур с итальянскими фасадами и фурнитурой с доводчиками Blum, встроенный холодильник с морозильной камерой, варочная поверхность с духовым шкафом, посудомоечная машина, вся техника Bosch. Так же стиральная/сушильная машина LG. Выполненные на заказ, встроенные большие шкафы так же с итальянскими фасадами и фурнитурой с доводчиками Blum. Два дивана, большая кровать, стол изготовленный на заказ из дерева Карагач, длинной 2 метра на 8 человек. Система полноценной водоочистки Аквафор. ГАРАЖ: На железобетонной плите с утеплением построен гараж профильной компанией. Материал стен сендвич-панель 100 мм. Для двух автомобилей и отдельным помещением. Общая площадь 72 кв.м. Подведено электричество, вода, и организован слив. Въездные ворота шириной 5 метров, на электроприводе. КОММУНИКАЦИИ: электричество - 15 кВт., заведено в дом и гараж под землёй. Газ - подведен к участку, остановлен кран с заглушкой. Завести в гараж могут за 2 недели, при необходимости. Интернет - оптоволокно, заведено под землей. Вода - скважина 77 м. и есть колодец на 7 колец. Вода в дом берется из скважины. В гараж вода тоже подведена. Канализация - Локальное очистное сооружение Евролос 6. Видеонаблюдение по всему периметру. ДОКУМЕНТЫ: Все строения зарегистрированы. Есть выписки. Прописан в доме. Один взрослый (не пожилой) собственник. Нет никаких обременений. Прямая продажа. Причина продажи - переезд в другую страну.
































































































































