Первичная продажа



Супер ипотека
ещё 7 акций
С отделкой
сдача ГК: 1 кв. 2029 года
Горный институт
15 минут пешком
23 677 840 ₽
432 630 ₽/м²
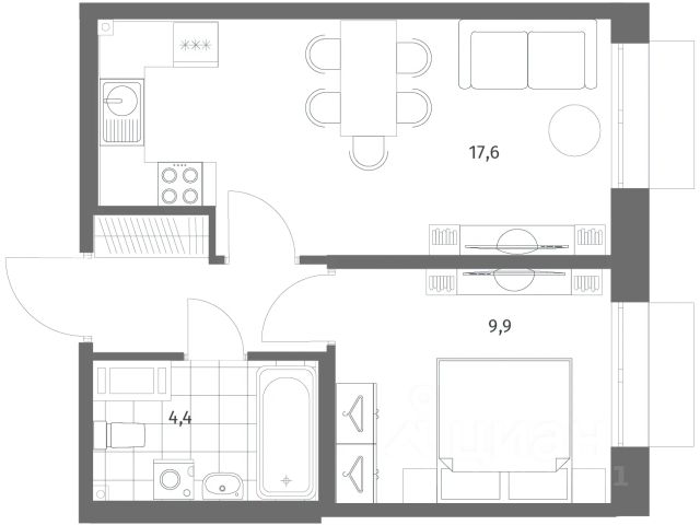
Продается двухкомнатная квартира от застройщика с предчистовой отделкой в ЖК "ЛЕГЕНДА Васильевского" на 9 этаже. Общая площадь: 54.73 кв.м., жилая: 20.13 кв.м., площадь просторной кухни-столовой: 20.19 кв.м. Угловая квартира, очень светлая, естественная вентиляция при открытии окон. В квартире один раздельный санузел. Высота потолков 2.72 м.
"ЛЕГЕНДА Васильевского" жилой квартал в минутной доступности от Финского залива, главного креативного хаба Санкт-Петербурга Севкабель Порта и других точек притяжения.
Современные инженерные и технические решения, повышающие качество жизни TechnoBox включают в себя: стационарный и удаленный контроль дома, систему вентиляции Air Design - здоровое дыхание без лишнего шума, мультисервисную сеть, объединяющую коммуникационные системы, удаленное управление электроприборами, контроль отопления в каждом помещении, поддерживающий оптимальный температурный баланс во время "холодного" периода", датчики протечки, датчик открытия входной двери. Мультисервисная сеть (МСС) объединяет ключевые слаботочные системы дома, задавая им единый высокий стандарт работы, обеспечивая надёжность их функционирования и управления.
Квартира готова к декорированию. Застройщиком сделана шумоизоляция; стены подготовлены для отделки; проведена электрика с учетом рекомендаций по расстановке мебели и бытовой техники; выровнен пол. В каждой квартире установлена взломостойкая входная дверь, окна со специальным термоизолированным алюминиевым профилем.
Двор жилого комплекса "ЛЕГЕНДА Васильевского" закрыт.
Проект состоит из шести разноформатных корпусов с ритмичными фасадами в духе пост-конструктивизма. Геометрия жилого комплекса состоит из четко простроенных осей, чередующих открытые пространства и объемы корпусов, каждый из которых обладает своим визуальным кодом индивидуальным рисунком фасада и цветовой палитрой. Корпуса образуют периметр с общественными пространствами: площадью с кафе, магазинами и пешеходным променадом с детскими игровыми хабами, местами для спокойного отдыха и workout-зоной.
На территории комплекса предусмотрены теплый подземный паркинг и два наземных 4-х этажных паркинга.
Квартира реализуется напрямую от застройщика.
Обращение по данному предложению осуществляется через отдел продаж застройщика.
Для агентств недвижимости действует отдельный формат сотрудничества.
































































































































