


442 478 ₽/м²
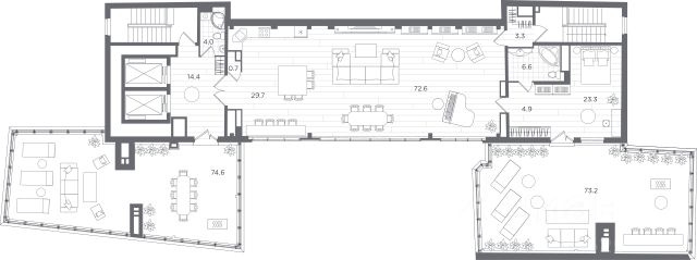
Трехкомнатные апартаменты в ЖК "Северная корона" на 2 этаже. Апартаменты без отделки, после выдачи ключей можно делать ремонт. Общая площадь: 101.7 кв.м., жилая: 62.8 кв.м., площадь просторной кухни-столовой: 20.8 кв.м. Квартира без проходных комнат, окна выходят нa три cтopoны дома. В апартаментах один совмещенный и один раздельный санузел. Высота потолков 3.3 м. 3 корпус дома "Северная Корона" представляет собой реконструкцию исторического здания доходного дома М.К. Покотиловой. Доходный дом строился в неоклассическом стиле с рустированными пилястрами, балюстрадой, барельефами в виде путти, ваз и сатиров, а также маскаронами львов в замковых камнях арок первого этажа. Основное здание было четырехэтажным, а боковые крылья трехэтажными. Данное решение ступенчатой композиции было продиктовано близостью Карповского переулка более высокую часть архитектор увел вглубь участка. Конструкция здания производилась согласно канонам неоклассической архитектуры: массивные стены достигают толщины в 1 метр, а высота потолков доходит до 3,4 метра. Кроме того, на первом и втором этажах выполнены сложные окна двойные и тройные. Они состоят из двух и трех оконных проемов, которые объединены общими декоративными элементами в виде барельефов. Апартаменты находятся в корпусе 3. Дом монолитно-блочный, одноподъездный, высотой 7 этажей. На этаже 4 квартиры. В подъезде 3 грузовых лифта. В настоящее время строительство окончено, дом сдан в 4 квартале 2023 года. Оформление сделки по договору купли-продажи. В шаговой доступности от жилого комплекса расположены станции метро (расстояние по прямой): "Петроградская" (500 м), "Чкаловская" (1.3 км), "Горьковская" (1.7 км), "Чёрная речка" (1.7 км), также недалеко от этого корпуса находятся станции метро: "Чернышевская", "Спортивная". Премиальный жилой комплекс "Северная корона" расположился в парадной части Петроградской стороны на пересечении ее главного проспекта — Каменноостровского и набережной реки Карповки. Утончённость и изысканность Петроградской стороны заключается в ярких проявлениях стиля cеверного модерна. Архитектура премиального дома "Северная корона" — это современное воплощение и новое развитие архитектуры северного модерна. Особенность и уникальность дома в его протяженности вдоль реки Карповки. Фасад исключает монотонность, линии интегрированы в канву курдонера и внутренних общественных пространств, обращённых как в сторону Каменноостровского проспекта, так и Иоановского монастыря. Все квартиры в полной мере можно назвать видовыми они открыты историческому окружению и ландшафтной архитектуре. Что дарит владельцам единственные в своем роде захватывающие виды. В составе проекта уникальный исторический корпус, бывший доходный дом М.К. Покотиловой. Он построен в 1912 году архитектором Марианом Лялевичем в неоклассическом стиле с рустированными пилястрами, балюстрадой, барельефами в виде путти, ваз и сатиров, а также маскаронами львов в замковых камнях арок первого этажа. Дом утратил историч




































































































































































