


506 780 ₽/м²
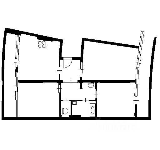
В продаже эксклюзивные апартаменты бизнес-класса в ЖК Лахта-Плаза. Новый современный жилой комплекс, расположенный в красивом месте на берегу Финского залива. Из окон открывается лучший вид на Лахта Центр. Преимущество комплекса — его уникальное расположение в тихой, но удобно связанной с ключевыми транспортными магистралями части Приморского района. Дом построен по кирпично-монолитной технологии. Квартира находится на восьмом этаже, общая площадь 58,7 м², высота потолков 3,1 метра. Отличная планировка: изолированная спальня и большая кухня-гостиная с прекрасным видом из окон на Лахта Центр, раздельные санузлы. С открытой террасы открывается шикарный вид на закатное солнце. Квартира в идеальном состоянии, выполнен ремонт высокого класса. Жизнь в ЖК Лахта-Плаза организована по принципу клубного дома, а уникальная инфраструктура дома, расположенного на закрытой охраняемой территории, предназначена только для жильцов комплекса. Доступны дополнительные сервисы, такие как химчистка, прачечная, уборка и доставка еды из ресторана. Лифт спускается в подземный паркинг, где можно арендовать или приобрести парковочное место, профессиональная круглосуточная служба охраны. Ландшафтное озеленение, современная детская площадка с резиновым покрытием, отдельные места для велосипедов и гостевой паркинг обеспечивают комфорт. Закрытая охраняемая территория, въезд осуществляется через пункт охраны. В шаговой доступности — отель 4 звезды с рестораном, спа-центром и тренажерным залом, видовые рестораны, Тинькофф Арена, крупнейшая концертно-спортивная площадка города, парк 300-летия Санкт-Петербурга с благоустроенным пляжем.
















































































