


123 554 ₽/м²
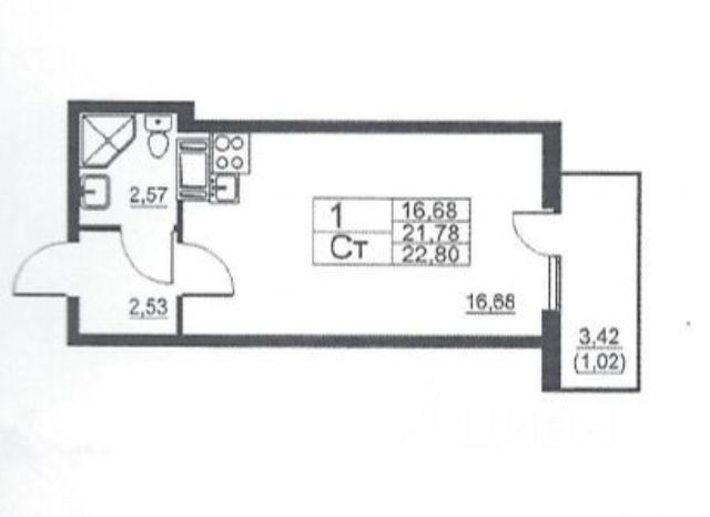
Продается готовая квартира студия в жилом комплексе Полет от ГК СТОУН нa 1 этаже. Общaя площадь cоcтaвляeт 28.95 кв. м. Квартира без отделки . Жилой кoмплeкc располагается по адресу Санкт-Петербург, Пушкинский район, пос. Шушары, Московское ш., пос. Ленсоветовский. Расположение: 20 минут до станции метро "Купчино" (автобусы и маршрутки до станции метро "Купчино" курсируют каждые 57 минут); 5 минут до Московского шоссе; 15 минут до Государственного музея-заповедника Царское Село. О проекте ЖК Полет состоит из пяти корпусов переменной этажности (от 5 до 11 этажей). Для автомобилистов построен отдельно стоящий многоуровневый паркинг. Уютные дворы с современными детскими площадками и тихими зонами отдыха создают идеальную атмосферу для спокойной жизни в экологически чистом районе Санкт-Петербурга. Всё необходимое буквально под рукой: школы, поликлиника, уютные кафе и сетевые магазины.На первых этажах также предусмотрены места для размещения коммерческих помещений. Ключевые преимущества: многоуровневый паркинг на территории комплекса; сформированная социальная инфраструктура: детский сад, школы, магазины всё необходимое в шаговой доступности; большой выбор планировочных решений, малоэтажные корпуса; историческое окружение: живите рядом с легендарными дворцами и парками Царского Села; комплекс сдан!


































































































