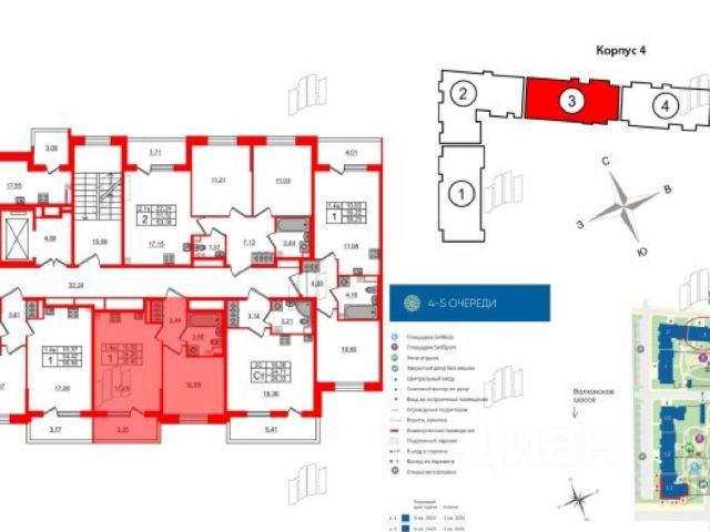
269 572 ₽/м²
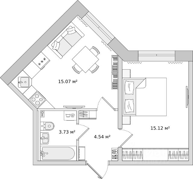
Продается уютная 1-комнатная квартира от застройщика в жилом комплексе "Парадный ансамбль" в престижном Московском районе. До метро можно добраться на транспорте всего за 20 минут. Удобная, классическая, функциональная европланировка, большая кухня-гостиная 17.38 м², вместительная прихожая 3.27 м². Общая площадь квартиры - 34.5 м², жилая 10.42 м², высота потолка 2.77 м. Квартира продается с отделкой "Норд Лайн светлый". Что особенного в ЖК "Парадный ансамбль"? • Уникальные квартиры. Хай Флет (High Flat) на последних этажах, палисадники у квартир на первом этаже, семейные секции, квартиры с саунами и окном в ванной • Масштабное малоэтажное строительство в престижном Московском районе • Рекреационные зоны: парадный парк в центре квартала, ручей с собственной набережной, центральная площадь, ресторанный комплекс и пешеходный бульвар • Фасады из керамогранита и кирпича с яркими и акцентными входными группами • Две самые большие площадки Setl Kids и Setl Sport • Инновационный Лицей Setl с оригинальной архитектурной концепцией и уникальной образовательной средой квартира в готовой новостройке на шоссе Пулковское в Санкт-Петербурге.













































































