416 055 ₽/м²
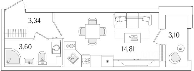
Продаётся Студия в ЖК Гранат от застройщика Холдинг "РСТИ" (Росстройинвест). Квартира находится в 13 этажном доме, в Гранат - Корпус К1 на 1 этаже. Общая площадь квартиры 23,30 кв.м. Жилой комплекс "Гранат" расположен во Фрунзенском районе, у станции метро "Бухарестская", на улице Фучика, д. 12. Местоположение обладает уникальным балансом транспортной доступности — отсюда легко доехать и в центральную часть города, и в окраинные районы. Можно без пересадок на наземном транспорте за 20 минут добраться до Невского проспекта или на личном автомобиле до аэропорта Пулково. Все остановки транспорта расположены в пешей доступности от объекта. По Софийской улице можно удобно выехать на КАД. Здания получили современный, выразительный облик. Запоминающийся образ создан благодаря пластике фасадов и дизайну входной группы, отсылающему к граням драгоценного камня. Двусветный холл связывает пространства внутреннего двора и улицы, является порталом в обособленный тихий двор жилого комплекса. Высокие витражи обеспечивают просматриваемость пространства, приглашая пройти внутрь. Концепция благоустройства делит пространство всего комплекса на три отдельных двора. Три двора соединены между собой визуально и с помощью шаговых дорожек, утопленных в рельеф. Деревья, кустарники, высокие газоны, рельеф со злаковыми растениями и прочими травами создают ощущение близости к природе. В "Гранате" были созданы особые квартиры. Они предлагают по-новому взглянуть на привычную жизнь и дополнить ее творческими и функциональными акцентами. Ключевое слово в них — больше. Больше света, больше свободы и больше общения с близкими. Кухни-гостиные с угловым остеклением. Просторные кухни-гостиные площадью более 20 м². Студии с двумя окнами. Ванные с окном Clerestory. Кухни-гостиные с выделенной нишей под кухню. Спальни с выделенной многофункциональной зоной, в которой можно организовать свой идеальный уголок. Квартиры с просторными лоджиями правильной квадратной формы. "Гранат" — технологичный дом. Инженерные системы выполнены на базе прогрессивных решений для удобной жизни. Смарт-подход охватывает все аспекты комфорта: от контроля доступа до систем водоснабжения и размещения кондиционеров.






























































































