


346 585 ₽/м²
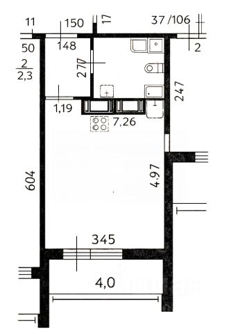
SAAN - новый мультиформатный проект доходной недвижимости в двух минутах от метро Пионерская. В 10 шагах от входа начинается Удельный парк. В проекте представлены различные варианты: от компактных студий до просторных резиденций с панорамными террасами, а также офисы и коммерческая недвижимость. Резиденты получают доступ к клубной инфраструктуре проекта: Городской термальный курорт Зона коворкинга Общественная гостиная с террасой Камерный кинотеатр Детская игровая зона Конференц-залы Бьюти-пространство Спортзал Комната для подкастов Общественное пространство на кровле с видом на город Отличительная особенность проекта - собственный SPA-комплекс, включающий в себя три бассейна, парные с видами на Удельный парк и зону релакса. Под авторством ITALY&CO выйдет проект модного гастро-пространства, флагманом которого станет двухуровневый ресторан с террасой, кафе для завтраков и лаунж-бар, обслуживающий зону лобби. Украшением прилегающей территории станет благоустроенное общественное пространство площадью 3500 кв.м., сочетающее традиции скандинавских садов и элементы азиатского дизайна. Эксплуатацией комплекса займется собственная управляющая компания. В юнитах можно проживать самостоятельно или сдавать их в аренду через управляющую компанию и получать пассивный доход. В цену юнитов включена дизайнерская чистовая отделка. Доступны программы гарантированной доходности для инвесторов. О застройщике Hansa Group — современный девелопер с 25-летним опытом. Компания развивает разные направления строительства: жилая и коммерческая недвижимость, производственные здания и спортивные сооружения. За 25-летний опыт работы реализовала более 50 собственных и партнерских проектов по всей России. Hansa Group интегрируем актуальные мировые тренды в сегмент доходной недвижимости и задает новый ориентир для инвестиций и жизни.


































































































