


204 106 ₽/м²
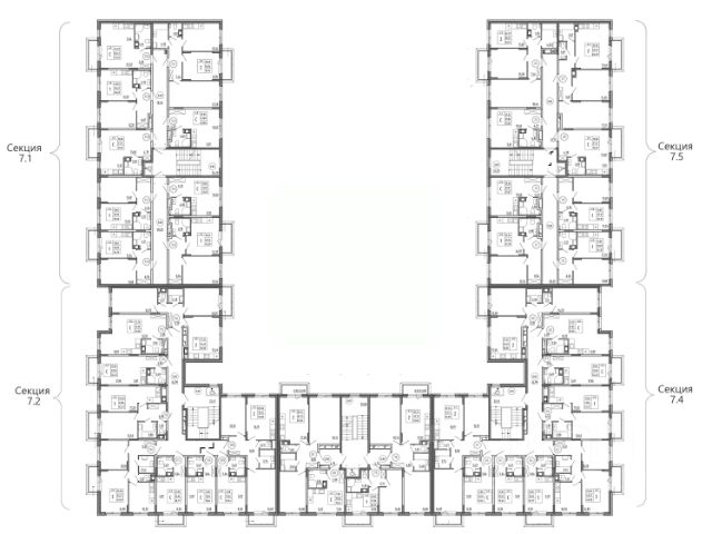
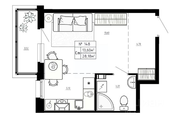
Продаётся студия квартира 246, общей площадью 28.04 кв.м., на 4 этаже. Дом комфорт-класса, 12 этажей, в окружении леса и малоэтажной застройки. Проект с умным домом. РАСПОЛОЖЕНИЕ И БЛАГОУСТРОЙСТВО ЖК "Тишин" расположен в поселке Новоселье в окружении природы — рядом находятся Гореловский лес и Шунгеровский заказник, что делает его идеальным для любителей чистого воздуха и покоя. Особенность комплекса — это благоустроенные дворы с зонами для отдыха, спорта и игр, а также центральный бульвар протяженностью 1 км с велодорожками, спортивными площадками и зонами для прогулок. На территории комплекса предусмотрены детские сады, школа, коммерческие помещения и паркинги, что создает комфортную среду для жизни. Три уровня умного дома 1. Уровень квартира • Управление освещением, климатом и водоснабжением через мобильное приложение или голосового помощника. • Система защиты от протечек воды с автоматическим перекрытием стояков. • Пожарная сигнализация с уведомлениями в режиме реального времени. 2. Уровень дома • Онлайн-доступ к видеонаблюдению, включая просмотр архива. • Контроль доступа на этажах через СКУД (систему контроля и управления доступом). 3. Уровень ЖК • Единое мобильное приложение Wise City для общения с управляющей компанией, оплаты счетов и сервисных заявок. ГК "Едино" — один из лидеров рынка недвижимости Северо-Запада с 24-летним опытом. Компания известна высокими стандартами качества и соблюдением сроков сдачи объектов. В цифрах: Более 50 реализованных проектов. 60 000+ счастливых жителей. Мы организуем для вас бесплатный трансфер до офиса продаж и обратно!

























































































































