


205 000 ₽/м²
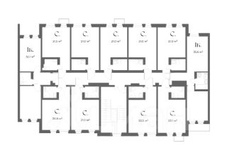
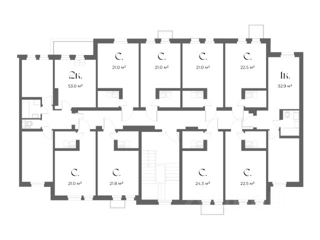
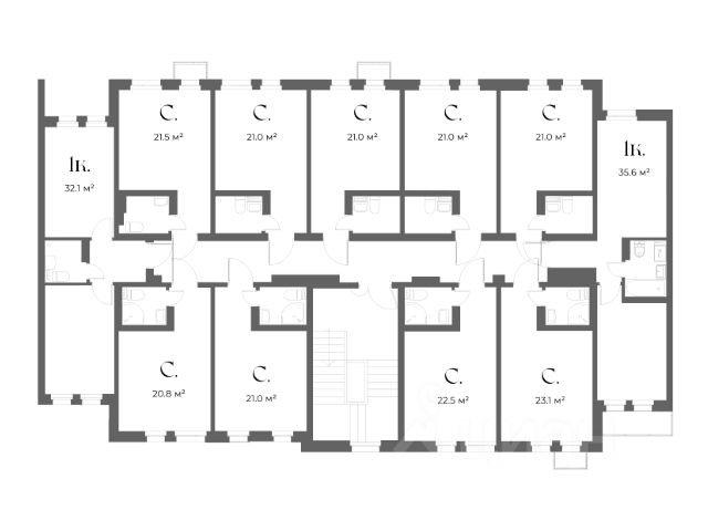
Продаётся квартира-студия 25,1 м² в эко-квартале Нега в Новом Девяткино. Квартира находится на 4 этаже пятиэтажного дома — это единственный комплекс такого формата в Девяткино, без "стены" из высоток за окном. Планировка позволяет разделить приватную и общую зоны, удобно расставить мебель и организовать хранение. Отделка от застройщика: можно въехать сразу после сделки или сделать интерьер под себя без лишних переделок. Нега — квартал для тех, кто хочет жить у природы, а не просто "видеть её издалека". Дома стоят рядом с лесом и прудом, поэтому из двора буквально несколько минут до прогулочных троп и воды. Территория закрыта от посторонних и машин: транспорт остаётся по периметру, внутри — только люди, детские игры и прогулки. Во дворе расположены детские и спортивные площадки, зоны спокойного отдыха и собственный детский сад — пространство читается и для ребёнка, и для взрослого. Входы в дома устроены с уровня земли, без высоких ступеней и крутых пандусов — удобно заходить с коляской, велосипедом, самокатом или с покупками в руках. В подъездах предусмотрены колясочные и аккуратные общие зоны в нейтральной гамме, которые поддерживают ощущение домашнего, а не "офисного" пространства. При этом Нега не отрывает от города. До метро "Девяткино" примерно 15 минут на машине: легко добраться до Петербурга на работу или учёбу и вернуться в более спокойную зеленую среду. В пешей доступности от квартала — магазины, детские сады, школы, бытовые сервисы и остановки общественного транспорта. Квартира в Нега подойдет тем, кому важны лес, вода и малоэтажная застройка, но при этом нужна нормальная транспортная доступность и привычная городская инфраструктура рядом с домом.




































































































