Первичная продажа



С отделкой
сдача ГК: 3 кв. 2027 года
Обухово
5 минут пешком
5 876 140 ₽
256 600 ₽/м²
Cosmos Smart Yuzhny это прежде всего инвестиционный продукт!
Приобретая гостиничный номер, Вы не просто покупаете объект недвижимости, а получаете высокодоходную долю в отельном бизнесе федерального гостиничного оператора Cosmos Hotel Group:
- Отельный сервис три звезды
- Управление профессиональным отельным оператором
- Краткосрочная аренда - максимальная выгода для инвесторов
- Прибыль выше чем от депозита и других способов инвестирования
- При заключении ДДУ клиент заключает предварительный договор аренды с УК на 4 года
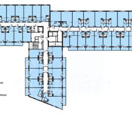
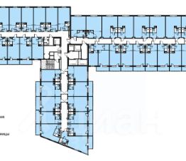
13-ти этажный гостиничный комплекс включает в себя 670 гостиничных номеров, площадью от 18,53 до 40,29 кв.м.
Номера сдаются с полной чистовой отделкой и оснащением!
В каждом номере полноценная двуспальная кровать, шкаф для одежды и обязательно шторы блэкаут для комфортного отдыха, а также будет установлена система кондиционирования.
Санузлы отделаны керамогранитом, укомплектованы зеркалами с подсветкой, душевыми кабинами со стеклянным ограждением
Номера передаются отельному оператору полностью готовыми для приема гостей:
- кухонный гарнитур с мойкой из искусственного камня,
- обеденная группа,
- встроенный холодильник,
- вытяжка
- варочная панель.
Мы гарантируем инвесторам доход в договоре аренды - Начиная с 30 декабря 2027 года - В размере 40 000 рублей в месяц.







































































































