


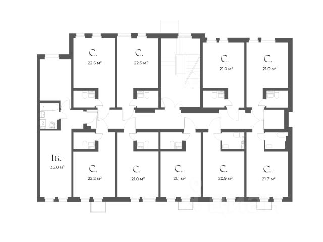
194 463 ₽/м²
"Патио" — это яркий современный квартал, расположенный в настоящем зеленом оазисе, всего в 25 минутах езды от Петербурга. Проект состоит из двух кирпично-белых корпусов, выполненных по принципу переменной этажности: от пяти до двенадцати этажей.? Концепция проекта — уютный жилой квартал, где соседи знают друг друга, дружат ?и общаются. В "Патио" есть все для комфортного добрососедского времяпровождения: закрытая дворовая территория с игровыми зонами для детей разных возрастов ?и пространством для спокойного отдыха взрослых, а также собственная живописная экотропа "Заповедный лабиринт" протяженностью около трех километров.


































































































