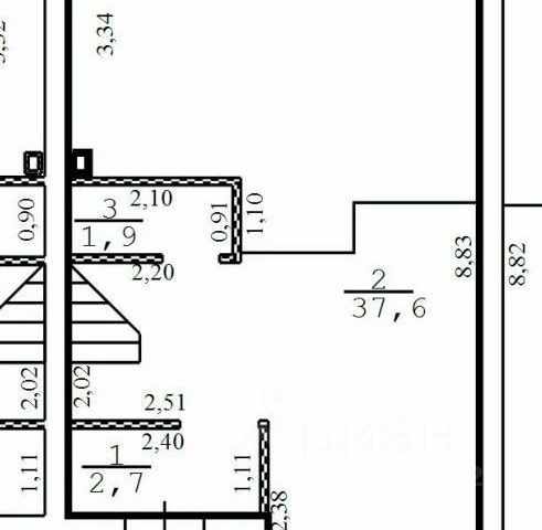
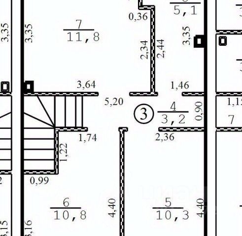
Двухэтажный таунхаус в закрытом поселке в Мистолово. Охраняемая территория, управляющая компания, все коммуникации центральные (электричество, газ, канализация, водоснабжение, собственная котельная в каждом таунхаусе). Выполнены ключевые этапы черновых работ, превращающие его в идеальное пространство для жизни. Всё сделано качественно и с вниманием к деталям. Терраса : В основании — надежный слой ППУ и гидроизоляция, организован разуклон от дома в слив (исключены застои воды). Поверхность выровнена, по периметру проведена электрика и смонтирована встроенная в бетон подсветка (лампы уже на объекте). Это готовая зона для круглогодичного отдыха без нареканий к инженерии. Инженерные системы: Полная замена труб отопления с перепайкой на двух этажах. Установлены новые радиаторы по всему дому. В зоне гостиной смонтированы 2 внутрипольных конвектора (радиаторы на объекте) — для идеального тепла и свободы планировки у панорамных окон. Чистовая отделка и подготовка: Залита качественная стяжка пола — идеальное основание под любое финишное покрытие. Выполнена гидроизоляция по периметру и во всех мокрых зонах — гарантия защиты от протечек и долговечность ремонта. Установлены перегородки строго по приложенному плану — вы получаете готовую, продуманную планировку с большой зоной кухни-гостиной и двумя мастер-спальными. Это вариант для тех, кто ценит свое время. Вам не придется вникать в технически сложные этапы (стяжка, гидроизоляция, замена труб), останется только добавить финишные штрихи, чтобы дом заиграл вашими красками. Прямая продажа, один собственник, без обременений. Подходим под ипотеку и материнский капитал.
























































































