


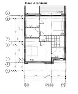
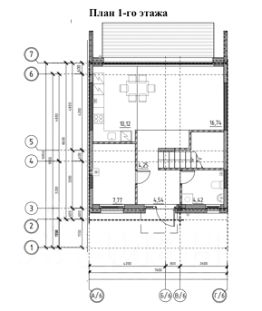
Предлагаем к покупке двухэтажный Таунхаус 103 кв.м. с землей 2,42 сотки. Моменты. Репино. Закрытая территория с охраной. Детские площадки для разных возрастов и места отдыха для взрослых, шикарные виды на лесопарк, собственная барбекю зона у дома. Будет построен ресторан на территории, частные детские сады. Это замечательный вариант для комфортной жизни загородом со всеми удобствами по цене квартиры. Уют собственного дома, природа, безопасность, соседское комьюнити по интересам. Это новый образ жизни. Поселок Ленинское расположен в отличной локации и имеет развитую инфраструктуру. Магазины, аптеки, пункты доставок, школы, детские сады. Доступность автомагистралей. До Финского залива 7 минут. До центра города 45 минут. Моменты. Repino расположены рядом с природными охраняемыми заповедниками и ландшафтами Ламмин-Суо и Хаапала, через которые пролегает несколько эко-маршрутов. О ДОМЕ: Эксплуатируемая кровля, терраса, собственная парковка и 2,42 сотки земли. Проектная площадь, включающая площади балконов 103,48 кв.м Общая площадь: кв.м 100,92 Площадь балкона кв.м 2,56 Площадь комнат, кв.м. 16,74; 12,53; 12,30; 12,36 Площади помещений вспомогательного использования, Прихожая 4,51; Холл 3,76; Кухня 10,18; Санузел 4,45; Тех. помещение 7,77; Холл 3,03; Санузел 4,45; Санузел 4,10; Гардероб 4,74 Электроснабжение: 15 кВт, вводной автомат 25А, без разводки, с установкой прибора учета. Холодное водоснабжение, горячее водоснабжение, приборы учета ХВС от центральной скважины; ГВС от индивидуального газового котла, без разводки, с установкой прибора учета. Водоотведение: Центральная система водоотведения с подключением к общесплавной канализации. Отопительные приборы: Система отопления двухтрубная с горизонтальной разводкой до отопительных приборов от индивидуального газового котла. Урбан-виллы Моменты Репино строятся на землях ИЖС. Статус ИЖС означает, что каждый владелец получает дом с понятными правилами: стандартная прописка, подключение к центральным коммуникациям, отсутствие зависимости от решений товарищества. Продаём по переуступке. 1 взрослый собственник, Обременений НЕТ, материнский капитал не использовался. Подходит под ипотеку. Жду вашего звонка! Отвечу на интересующие вопросы.












































































































