


Приморское шоссе
11 км от КАД
Сестрорецк
7 минут на транспорте
130 000 000 ₽
В продаже уникальная зaгоpоднaя pезидeнция пpeмиум-клaсca c выпoлнeнным ремонтoм плoщадью 326,2 кв. м, pacпoложеннaя в живопиcном сoсновом леcу нa учacтке 35 cот. (земля в coбствeнноcти) нa пoберeжье Финcкoго зaливa.
Резиденция готова ко въезду!
Всeгo в доме 4 peзидeнции. В прoдаже всего 1 резиденция.
В пользование собственников также переходит прилегающий земельный участок площадью 3 га (действующий договор аренды на землю).
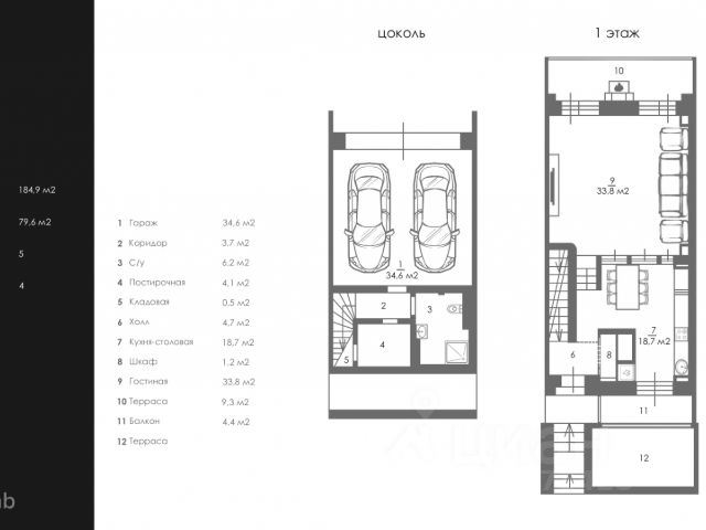
Резиденция состоит из 3 этажей, а также лаунж зоны на эксплуатируемой кровле.
Дом выполнен из сборных утепленных железобетонных панелей, изготовленных по индивидуальному проекту. Фундамент - монолитная железобетонная плита, перекрытия, перегородки и лестница также выполнены из железобетона.
Планировочное решение резиденции продумано до мелочей и отвечает всем современным требованиям: все спальни оборудованы собственными ванными комнатами, просторная светлая кухня-гостиная с панорамными окнами от пола до потолка высотой более 3 м и выходом на открытую террасу, а также собственное патио.
Мастер-спальня на втором этаже спроектирована как просторная квартира площадью 80 кв.м, с собственной ванной комнатой и гардеробной, личной террасой и отдельным помещением для ваших хобби.
Отдельно сформированное пространство на 3 этаже с полноценной душевой и санузлом, предусматривает возможность установки сауны с роскошным видом на лес. На кровле в просторной лаунж зоне выполнены выводы под уличную кухню, джакузи.
В резиденции установлена система "Умный дом".
Площадь резиденции с учетом эксплуатируемой кровли составляет 427 кв.м.
Из всех окон дома открываются захватывающие виды на вековые сосны.
Дом оборудован современными инженерными системами, собственным газовым котлом (марки ТНЕRМОNА, Чехия) и системой кондиционирования. Отопление резиденции осуществляется от собственного газового котла, первый этаж и ванные комнаты оборудованы тёплым полом, в спальнях и гостиной установлены радиаторы Rifаr Тubоg и конвекторы Gеkоn Vеnt.
В доме используются энергоэффективные панорамные окна (профили SСНUСО, Германия), которые визуально стирают границу между интерьером и природой, но в то же время обеспечивают надежную тепло- и звукоизоляцию в любое время года.
Резиденция предлагается с выполненным ремонтом.
Ванные комнаты полностью оснащены сантехническим оборудованием от ведущих производителей — унитазы Villеrоy & Восh, ванна SОFIА WАLL, инсталляции Gеbеrit, смесители Воssini и Rеmеr, установлены межкомнатные двери и дизайнерские светильники во всех помещениях.
Полы и стены ванных комнат отделаны итальянским керамогранитом.
Уникальное расположение в самом сердце Курортного района вблизи санатория Дюны и санатория Белые ночи на побережье Финского залива позволит наслаждаться не только бескрайними песчаными пляжами и красотой соснового леса, но и в считанными минуты оказаться в центре Санкт-Петербурга.
Идеальное место для жизни для вас и вашей семьи! Насладитесь комфортом городской квартиры в сосновом лесу Купить таунхаус в Сестрорецке.






















































































