От года, комм. платежи не включены, без комиссии, залог 50 000 ₽
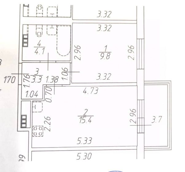
Сдаётся 1 комн. квартира с 2-мя КОНДИЦИОНЕРАМИ (в спальне и кухне-гостиной) на долгий срок напрямую от собственника без агентских комиссий. Оплата за первый месяц + залог. С животными повышенный залог. Полностью мебелированная 1-комнатная квартира с кухней-гостиной и панорамным видом на Финский залив в ЖК комфорт-класса Legenda Героев (желтый дом). Площадь квартиры 38 кв.м. + балкон 3,75 кв.м. Есть все необходимое для проживания: -кухня оснащена всей бытовой техникой - холодильником, посудомоечной машинкой, духовым шкафом и электрической панелью, СВЧ; - есть 2 кондиционера: в спальне и на кухне; - телевизор в гостинной; - стиральная машина; - в спальне шкаф и кровать 160*200; - диван-кровать в гостиной. - проведен Wi-Fi. Коммунальные платежи в стоимость не входят. В зависимости от потребления летом в среднем КУ составляет 4000-5000 руб., зимой 7000-9000 руб. ЖК сдан в IV квартале 2021 года. Закрытые охраняемые дворы с ландшафтным дизайном, детской и спортивными площадками, уличными тренажерами, зонами отдыха, городским огородом, концепция двор без машин. На 1 этаже расположены помещения для хранения колясок и велосипедов, оборудованные видеонаблюдением. Вызов лифта в холле осуществляется с помощью ключа. Гости для доступа в квартиру вызывают лифт по IP-домофонии. Все входные группы оборудованы системами контроля доступа и находятся под круглосуточным видеонаблюдением. Жилой комплекс расположен в районе Балтийская жемчужина и окружен двумя живописными каналами Матисов и Дудергофский. Рядом находятся Южно-Приморский и Новознаменский парки. В 10 минутах ходьбы расположен Жемчужный пляж. Автобусная остановка напротив дома. Сдается 1-комнатная квартира с балконом в районе Красносельский в Санкт-Петербурге.

























































































