Номер объекта: 537530. Спешите приобрести готовое качественное "фамильное" жилье - квартиру в планировке, которой учтены все самые передовые тенденции как приватность, функциональность, безопасность и комфорт для всех членов семьи.
Все эти ультрасовременные аспекты Вы найдете и во внутренней планировке квартиры, а также в закрытой среде самого жилого комплекса комфорт-класса.
О ДОМЕ:
Став покупателем квартиры, Вы попадаете на островок камерной и уютной атмосферы в среде шумного мегаполиса, потому что сам 13-ти этажный дом построен внутри обжитого квартала на достаточно обширной, закрытой территории, оснащенной системами видеонаблюдения и контроля доступа.
В доме просторные холлы с оборудованием для маломобильных граждан, что делает его доступным для всех. В каждой парадной установлено по два бесшумных лифта (грузовой и пассажирский).
Внутренний дворик оснащен местами для отдыха, спортивными и детскими площадками с набивным покрытием, а также предусмотрена большая аллея для променада с ландшафтным дизайном.
Для автолюбителей есть варианты по парковке открытая автостоянка и многоуровневый паркинг (возможность аренды).
Домом управляет профессиональное ТСЖ, а также создан чат для организационных вопросов.
О КВАРТИРЕ:
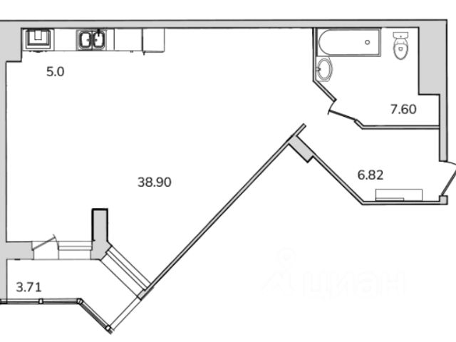
Однокомнатная квартира с высококачественной чистовой отделкой и практичной планировкой - площадью 42,6 кв.м..
Цветовая гамма отделки квартиры исключительно светлых тонов. Во всех помещениях за исключением санузлов на стенах виниловые обои "Rasch" на флизелиновой основе, на полу - износостойкий линолеум "Tarkett", в санузлах на полу и на стенах керамическая плитка, установлена сантехника, смесители, выполнена разводка электрики с установленными розетками и выключателями, установлены окна с тройным остеклением со встроенными клапанами для микропроветривания, межкомнатные двери из массива сосны увеличенной высоты и металлические входные двери с замками.
Просторная "дневная" зона - кухня 15,6 кв.м., которая включит в себя и большое место для приготовления пищи, и станет центром общения, семейных посиделок уголком семейного уюта и тепла.
Приватная "ночная" зона (спальня) светлая, правильной формы комната площадью: 13,6 кв.м.
Прихожая 7,3 кв.м. с местами хранения вещей.
Совмещенный санузел 6,1 кв.м. с окном, в котором всё подготовлено под установку стиральной машины.
Из окон открывается вид во внутренний двор.
Квартира полностью готова к проживанию.
ИНФРАСТРУКТУРА:
Рядом с домом хорошая развитая инфраструктура, есть всё для комфортной жизни: детский сад, школа, поликлиника, магазины, фитнес центры, торговые развлекательные центры и многое другое. Отличным местом для прогулок станут парки: "Сосновка", "Удельный" и "Муринский".
ТРАНСПОРТНАЯ ДОСТУПНОСТЬ:
Развитая транспортная инфраструктура в пешей доступности три станции метро. В непосредственной близости от комплекса - остановки общественного транспорта.
УСЛОВИЯ ПРОДАЖИ:
Доступны различные формы оплаты: 100%, ипотека от 6%, различные субсидии и использование материнского капитала.