


493 740 ₽/м²
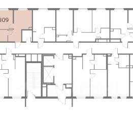
Однокомнатная квартира от застройщика с предчистовой отделкой в ЖК "ЛЕГЕНДА на Охте" на 13 этаже. Общая площадь: 38.2 кв.м., жилая: 11.2 кв.м., площадь просторной кухни-столовой: 18.3 кв.м. Все окна выходят на одну сторону. В квартире один совмещенный санузел. Высота потолков 2.85 м. Квартира находится в корпусе P. Дом монолитный, двухподъездный, высотой 14 этажей. На этаже 6 квартир. В подъезде 1 пассажирский и 1 грузовой лифт. Начало строительства - 1 квартал 2026 года. Окончание строительства - 2 квартал 2029 года. Оформление сделки по договору долевого участия. В шаговой доступности от дома находятся станции метро (расстояние по прямой): "Новочеркасская" (1.1 км), "Ладожская" (1.3 км), также недалеко от этого корпуса расположены станции метро: "Площадь Александра Невского", "Чернышевская", "Площадь Восстания". В проекте "Северный Порт" реализованы авторские решения девелопера LEGENDA, которые представлены уникальными фасадными решениями, коллекцией дизайнерских квартир, а также инновационным оснащением комплектацией TechnoBox - полностью технологически подготовленным пространством для любых современных сценариев жизни. В 1-ой очереди строительства проекта "Северный Порт" авторская комплектация TechnoBox представлена в корпусах 7.1 и 7.3 и включает в себя два направления: технологически подготовленное пространство: - Smart Home Ready - стационарное и удаленное управление квартирой. - Air Design - всегда свежий воздух, никакого шума и пыли. - Мультизональное кондиционирование. - Мультисервисная сеть - единая сеть коммуникационных систем. Готовность к декорированию: - Шумоизоляция - комплексные меры для защиты от лишнего шума. - Подготовка стен - все стены подготовлены к отделке дизайнерскими материалами. - Выровненный пол - полы выровнены стяжкой из цементно-песчаной смеси, повышающей механическую прочность, и готовы к укладке покрытия. - Электрические сети - коммуникации расположены с учетом рекомендаций по расстановке мебели и техники. "Северный порт" от LEGENDA входит в крупномасштабный проект комплексного развития территории Северного речного порта, реализуемый правительством Москвы, и представляет собой микс жилой, коммерческой, социальной и общественной инфраструктуры. Автором концепции обустройства территории выступило архитектурное бюро Сергея Скуратова. Созданный дизайн-код лёг в основу проекта, разработанного LEGENDA совместно с архитектурным бюро KAMEN Architects. Город ставит новый акцент, создавая мощный центр притяжения в экологичной локации у Северного речного вокзала. Продается 1-комнатная квартира на 13 этаже в Санкт-Петербурге.














































































































