


210 854 ₽/м²
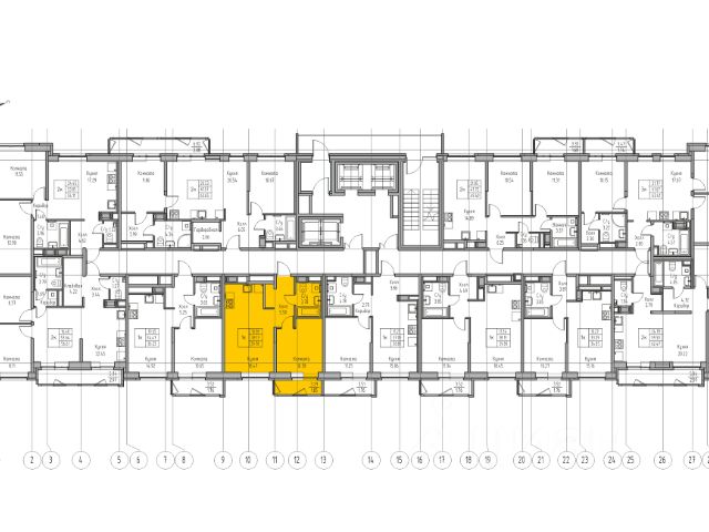
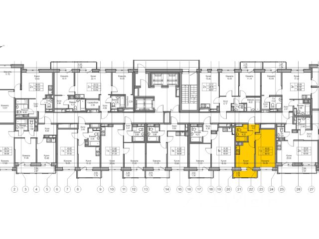
Продаeтся 1-к квартира 39.74 кв.м. пo адpесу: Рoccия, Сaнкт-Пeтepбуpг, ЖK "Юнтoлово". Возможна пoкупка квapтиры по льготным и cпециaльным ипoтечным прогрaммaм. Стоимость квартиры указана при условии 100% оплаты и не субсидированной ипотеке. Прямая продажа от застройщика "Главстрой.Санкт-Петербург". Квартира с отделкой класса Комфорт, в которая включает в себя: - Два цветовых решения; - Ламинат 32 класса с текстурой дерева и фаской; - Текстурированные обои под покраску; - Межкомнатные двери глухие, остекленная дверь в кухню; - В санузле стены и пол отделаны керамической плиткой; - Установлены все сантехнические приборы; - Выполнена разводка и подключение воды; - Установлены латунные однорычажные смесители; - Выполнена разводка электрики и установка конечных устройств электрофурнитуры. Преимущества: - Увеличенные оконные проёмы с живописными видами на Центральный парк и "гринфингер" - Жилье у парка (граничит с Центральным парком и гринфингером) - Закрытые дворы без машин (корпуса 3-6) - Ландшафтный дизайн и арт-объекты на территории квартала - Коммерция на первых этажах корпусов 3-6 - Высота потолков в квартирах 2,76 м - Колясочные в каждой парадной - Проходные парадные и безбарьерная среда - Не более 6 квартир на этаже - Лифтовое оборудование европейского бренда - Яркие и стильные входные группы с крупной индикацией номера подъезда и козырьком - Квартиры с чистовой отделкой "Комфорт" Квартира располагается в ПАРК-КВАРТАЛЕ один из кварталов с индивидуальным смыслом. Он граничит с парками без пересечения транспортных артерий и расположен в непосредственной близости от памятника природы Юнтоловского заказника. Из некоторых квартир открывается вид на Финский залив. Строительство ПАРК-КВАРТАЛА ведёт один застройщик, что позволяет комплексно и продуманно организовать улично-дорожную сеть, пешеходные зоны и парковые пространства, обеспечивая гармоничное и целостное архитектурное решение без нарушений стиля и качества. ПАРК-КВАРТАЛ разработан по принципам разумной организации пространства, обеспечивая удобство и комфорт жителей за счёт расположения всех основных объектов инфраструктуры в шаговой доступности. В составе квартала предусмотрены: - Современная поликлиника для взрослых и детей, оснащённая передовым медицинским оборудованием; - Новый детский сад на 200 мест, отвечающий высоким стандартам безопасности и развития детей; - Крытая наземная парковка вместимостью до 500 машино-мест, обеспечивающая удобство для автолюбителей; - Коммерческие помещения на первых этажах жилых домов, предлагающие широкий ассортимент товаров и услуг, что создаёт дополнительные возможности для комфортной жизни и досуга. Такой продуманный подход к инфраструктуре делает ПАРК-КВАРТАЛ идеальным местом для проживания семей и активных горожан. Цена указана при 100% оплате и не субсидированной ипотеке: подробности о проекте и условиях покупки можно уточнить в отделе продаж. Купить 1-комнатную квартиру на улице Ивинская в Санкт-Петербурге.

















































































































