235 122 ₽/м²
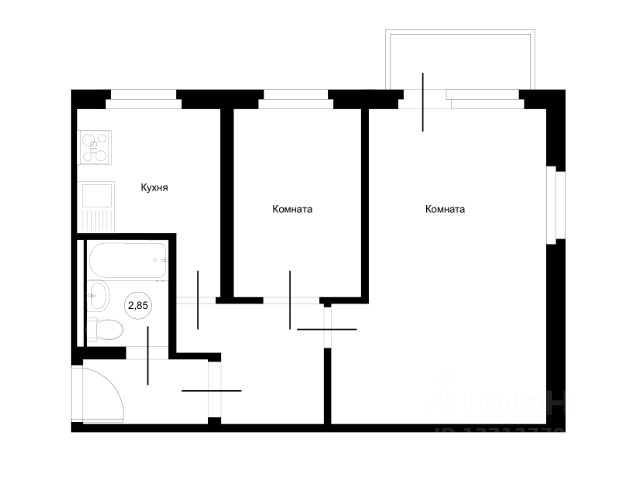
Угловая двухкомнатная квартира индивидуальной планировки. Планировка изменялась в ходе строительства дома, согласована. Монолитный дом 10 этажей, 4 подъезда, 2006г. постройки. Расположение между тремя парками: Сосновка самый большой городской парк Европы, Муринский парк, Сад Бенуа. Тихий, большой, зеленый двор с детской площадкой. Консьерж, камеры видеонаблюдения в подъездах и во дворе. Лоджия и балкон по всему периметру квартиры. Окна - на Восток и Север. От лестничной клетки отделена тамбуром на две квартиры, где оборудовано место для хранения уличной обуви. Тамбур также согласован. Квартира в идеальном состоянии, отделка материалами высокого качества. Стены жилых помещений и кухни обшиты шумо- и теплосберегающими панелями финской фирмы HALLTEX на натуральной основе - в квартире всегда тихо и тепло. Вентиляционные клапаны в стенах жилых помещениях и вытяжные вентиляторы в кухне и в санузле обеспечивают постоянный приток и циркуляцию свежего воздуха даже при закрытых окнах. Полы в жилых помещениях финский ламинат, в кухне ламинат/плитка, в коридоре и санузле плитка. Кухня с выходом на длинный балкон удобно соединена с одной из комнат, что создает единое светлое пространство кухни-гостиной. Из большой комнаты (18 кв.м) выход на широкий балкон-лоджию. Просторный санузел площадью 7,63 м оснащен электрическим теплым полом и вентиляцией. Оборудование: душевая кабина с глубоким поддоном, навесной унитаз (инсталляция), электрический полотенцесушитель, раковина с навесным и напольным шкафами, удобная каменная столешница для сортировки белья и прочих дел. Инфраструктура, естественно, вся в изобилии и шикарная. Рядом метро Политехническая. Удобный автомобильный выезд на КАД. Квартира покупалась собственниками у Застройщика. 2-комнатная квартира элитные на проспекте Тихорецкий в Санкт-Петербурге.








































































