


697 001 ₽/м²
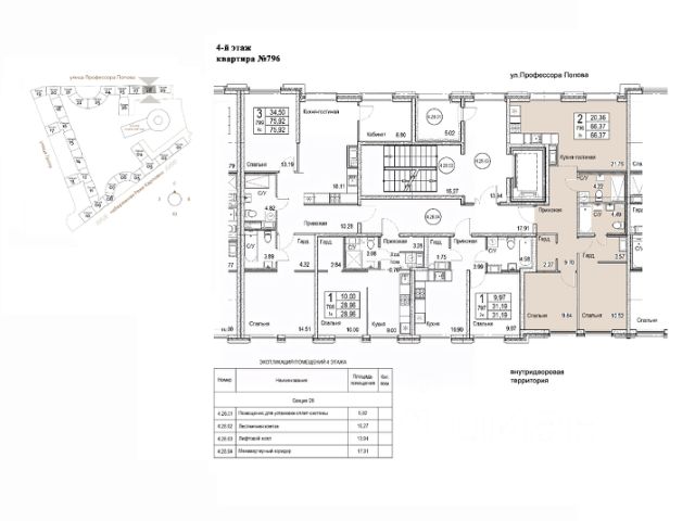
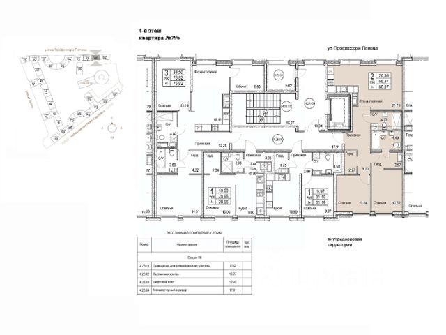
В историческом центре с особой атмосферой Петроградской стороны представлена 2-х комнатная квартира на 4 этаже общей площадью 75.37 кв.м. В корпусе КЛАССИК (KLASSIK) представлены уникальные квартиры для ценителей формата премиум. Пространство вокруг дома вариативно и открывает возможности для отдыха всей семьей на природе. В корпусе расположена зеленая гостиная - полуприватная зона на 2-4 человека с деревянными креслами и диваном, а также детская площадка, интегрированная в сосны. Мультиформатный AVANT соединил вайб Петроградской стороны, индустриальный колорит и уникальную историю локации, органическую архитектуру и множество форматов жилой, коммерческой, сервисной, развлекательной и социальной инфраструктуры, сократив высоту и объем застройки в пользу природных зон, променадов и частного парка. Элитный жилой комплекс располагается в окружении самых престижных заведений и ключевых транспортных артерий Петербурга. AVANT придется по душе тому, кто имеет внутреннюю силу и свободу от стереотипов. Главным общественным пространством и инфраструктурной артерией квартала станет пешеходный променад протяженностью 200 метров для отдыха в привычном для каждого формате. Здесь кафе, рестораны и бутики, фитнес-центр и детские площадки чередуются с уединенными зонами отдыха, окруженными зеленью. Уникальные форматы жилья созданы на основе конструктивных особенностей исторического здания фабрики. Особенности классического лофта задают вариативность форматов: - Индустриальный шик с толщиной стен до 1 метра; - Панорамные окна; - Многоуровневые пространства; - Воздушные антресольные этажи. Такого в Петербурге еще нет. В новом проекте ААG на Пионерской новые смыслы, новые возможности, смелые решения. AVANТ - вaша вcеленная для жизни, отдыха и paбoты.























































































































