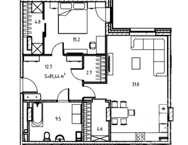
Продается двухкомнатная квартира в Клубный квартал "Ассамблея" на 4 этаже. Квартира без отделки, новый собственник может сделать ремонт по своему проекту. Общая площадь: 74.78 кв.м., жилая: 32.59 кв.м., площадь просторной кухни-столовой: 19.37 кв.м. Квартира - распашонка, без проходных комнат, окна выходят на paзные стороны дома. В квартире одна лоджия, один совмещенный и один раздельный санузел. Высота потолков 3 м.
Дом монолитный, двухподъездный, высотой 12 этажей. Квартира находится в 1-й секции в корпусе 3. На этаже 6 квартир. В подъезде 1 пассажирский и 1 грузовой лифт. Начало строительства - 2 квартал 2025 года. Окончание строительства - 3 квартал 2028 года. Оформление сделки по договору долевого участия.
В шаговой доступности от жилого комплекса имеются станции метро (расстояние по прямой): "Горный институт" (1.0 км), "Василеостровская" (1.4 км), "Приморская" (1.5 км), также недалеко от этого корпуса расположены станции метро: "Спортивная", "Чкаловская".
"Клубный квартал Ассамблея" — проект бизнес-класса на Васильевском острове, в самом сердце исторического Петербурга. Комплекс состоит из пяти корпусов переменной этажности — от 7 до 12 этажей — с выразительной архитектурой в стиле неомодернизма: светлый клинкер, панорамное остекление, просторное лобби с потолками высотой почти 8 метров. Потолки — до 3,2 метров. Подземный паркинг на 667 машиномест.
Комфорт и инфраструктура
Проект ориентирован на комфортную городскую жизнь. В закрытом дворе — ландшафтное озеленение, современные детские и спортивные площадки. Внутренний клуб для резидентов включает коворкинг, переговорные, кинозал, фитнес и бьюти-зону. IP-домофония с просмотром камер видеонаблюдения, дистанционное открывание дверей и доступа на территорию и в парадную со смартфона и планшета, просмотр показаний счетчиков, приложение для жителей PSK Home.
Локация
Расположение на Васильевском острове — сильная сторона проекта. До четырех станций метро ("Горный институт", "Василеостровская", "Спортивная", "Приморская") — 515 минут пешком. В шаговой доступности — зелёные зоны, культурные учреждения, в том числе сад "Василеостровец" и ДК имени Кирова. Основные магистрали Большой, Средний и Малый проспекты, Наличная и Уральская улицы. Съезд на ЗСД расположен недалеко от станции метро "Приморская", близ береговой линии. Благовещенский и Дворцовый мосты соединяют остров с центром города, а мосты Тучков, Биржевой и Бетанкура — с Петроградской стороной.
Застройщик
Группа компаний ПСК является одной из ведущих девелоперских компаний Санкт Петербурга. На протяжении 18 лет она возводит в Северной столице качественное жилье премиум, бизнес и комфорт-класса, социальные объекты школы и детские сады, апарт-отели и торговые центры. Является шестикратным обладателем золотого знака "Надежный застройщик России".