504 054 ₽/м²
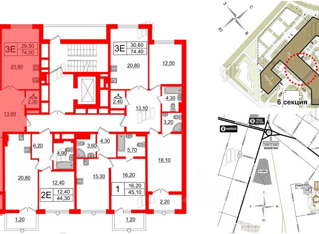
Клубный дом "МИРЪ" в самом центре Петербурга — воплощение идеальной картины мира для истинных ценителей прекрасного. Дом строится на Миргородской улице, в двух шагах от Невского проспекта и Московского вокзала. Из окон квартир приятно созерцать красоту Феодоровского собора и вдохновляться захватывающей панорамой Петербурга. В шаговой доступности — метро "Площадь Восстания", крупные торговые центры и "Старо-Невский" проспект с бутиками мировых премиум-брендов. Утром достаточно выйти из парадной, чтобы через 5 минут расположиться в кресле "Сапсана" и с комфортом добраться до Москвы. Путь до КАД и ЗСД на автомобиле займёт не более 15 минут, до аэропорта "Пулково" — полчаса. Камерная атмосфера создаётся за счёт деления на два корпуса и небольшого количества квартир в доме — их всего 263. Корпуса объединены триумфальной аркой, которая формирует закрытый контур внутреннего двора. Статус дома подчеркивают парадные холлы с арочными пролётами, витражным остеклением и произведениями искусства. Автомобилисты смогут спуститься в подземный паркинг на лифте прямо со своего этажа. Гостевую стоянку организуют вне комплекса — чтобы не нарушать безопасность двора. Для жителей в доме появится приватный фитнес-зал. Также в большом корпусе появится муниципальный детский сад с собственной игровой площадкой за пределами камерного пространства дома. В каждой парадной — просторные колясочные. Велосипеды вы сможете оставить на оборудованных велопарковках. Во внутреннем дворе появится живописный сквер, а в центре появится своеобразная "зелёная комната" с воздушным навесом и обогревателями. Детские игровые зоны воплощают природные формы и выполнены из экологичных материалов. В южной части двора расположится амфитеатр с отделкой из натурального дерева. Свободный Wi-Fi позволит подключиться к работе онлайн прямо во дворе или из парадных холлов. Территория дома полностью огорожена и охраняется круглосуточно. Войти в парадные можно только со стороны внутреннего двора по бесконтактному электронному ключу. Спланировать встречу гостей легко и удобно через специальное приложение для жителей. Площадь квартир варьируется от 26 до 146 м². Планировки с просторными кухнями-гостиными, мастер-спальнями, которые предусматривают отдельный санузел и выделенную гардеробную. А квартиры на верхних этажах дома с трёхметровыми потолками, панорамными окнами и видовыми террасами, откуда обозревается исторический центр города. 2-комнатная квартира на улице Миргородская в Санкт-Петербурге.










































































