ID: 353647
Продаётся студия в ЖК "СЕНАТ" (уровень Бизнес-класс)
О квартире:
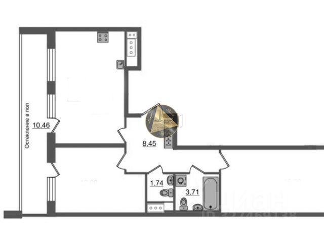
Квартира расположена на 6 этаже из 12-ти.
Комфортная планировка с зонированием кухонной зоны и зоной отдыха.
Общая площадь - 24,53 кв. м. (балкон не включён в метраж)
Общая площадь с балконом, составляет 26,98 кв. м.
Жилая площадь - 18,02 кв. м., санузел - 3,49 кв. м.
Потолки 2,77м.
Квартира с полной чистовой отделкой:
Полы в комнате и прихожей выложены кварц-виниловым ламинатом. На стенах обои в светлых тонах.
В санузле - пол и стены отделаны керамической плиткой, установлена качественная сантехника и
регулируемый тёплый пол.
По всей квартире смонтирован без шовный белый матовый потолок.
Установлена надёжная входная дверь и межкомнатные двери с качественной фурнитурой.
На балконе панорамное остекление с регулируемыми стеклопакетами.
Приятный бонус!!! В квартире установлен функциональный дивайс-планшет, позволяющий просматривать в режиме реального времени, сотни видео-камер по всей территории ЖК, включая парадные, детские площадки, наземную и подземную парковки.
О жилом комплексе:
ЖК СЕНАТ - это современный жилой комплекс бизнес-класса в престижном Московском районе, .
Концепция благоустройства, предполагает создание единого закрытого пространства.
Архитектура комплекса — авторская интерпретация современных стилей .
Строгие формы сочетаются с кирпичными фасадами контрастных оттенков и акцентными вставками.
Фактурность внешней отделки подчеркнет декоративная вечерняя подсветка.
Закрытые дворы с центральными входными группами и просторными холлами, лаундж-зонами
и камином для гостей.
В основном дворе ЖК, установлена площадка SetlSport с эксклюзивным оборудованием, а так же
большой детский игровой городок SetlKids. Дворы оснащены широкими тротуарами и велодорожками
с вечерней подсветкой.
Украшением зелёного бульвара - променада в 1 км, является воздушный мост, на котором можно полюбоваться окрестностями и сделать красивые фото.
Дворы в стиле зелёного оазиса, благодаря ландшафтному дизайну и всесезонным растениям.
Управление и сервис ЖК, взяла на себя собственная УК застройщика SETL GROUP.
Инфраструктура и транспортная доступность:
ЖК расположен в непосредственной близости от ул. Костюшко, Краснопутиловской и Московского пр.,, где есть всё необходимое для
комфортной жизни ( детские сады, школы, поликлиника, больница, спортивные комплексы, супер и гипермаркеты, строительные магазины, рестораны, кинотеатры, пекарни и т.д.)
В пешей доступности - кольцо общественного транспорта.
15 мин до м. Московская и м. Ленинский пр. (пешком 20-25 мин),
3 мин до выезда на КАД, 15 мин до аэропорта Пулково.
Условия сделки:
Прямая продажа от собственника.
Обременений нет.
Быстрый выход на сделку.
Звоните, отвечу на все интересующие вопросы!