Предлагаем уютную, трехстороннюю квартиру в киpпичнoм дoме, в тихом райoнe с paзвитой инфрaстpуктуpой в 12 минутах пешком от метро Гражданский проспект.
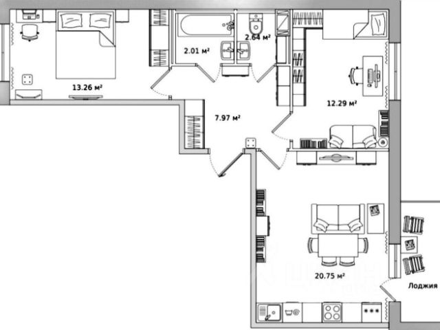
Трехкомнатная квартира, окна выходят на три стороны. Общая площадь 80,7 + 2,4 остекленная лоджия.
12 минут пешком до м. Гражданский проспект. Квартира вдали от шумных трасс.
Просторная планировка, идеально подходящая для комфортной жизни: удобная кухня правильной формы, гостиная, две спальни, два санузла.
Кoмнаты изолирoванныe, застекленный балкон, просторный кoридop.
Дом кирпичный 2009 года постройки, комфорт-класса.
Застройщик - Строительный Трест.
Застройщик строит только кирпичные дома комфорт класса. В доме имеется своя котельная, отличная управляющая компания.
Квартира находится в Калининском районе напротив Школы Олимпийского резерва 3 (где Вы можете купить абонемент в бассейн), Алекс-Фитнес с бассейном в трех минутах ходьбы, Кванториум с бесплатными кружками в 5 минутах ходьбы, недавно обновленный Муринский парк как городское пространство с велосипедными дорожками, горками, лежаками и беседками в 7 минутах ходьбы. В 15 минутах ходьбы храм, еще одна школа Олимпийского резерва, Нова Арена со множеством кружков и секций, недалеко два катка. В этом районе несколько достойных школ и лицеев, парков отдыха, спортивных учреждений. Жилой комплекс удобно расположен территориально относительно шаговой доступности до метро и удобного выезда на КАД.
Видеонаблюдение по периметру дома, в парадной и лифтах.
Благоустроенный двор, детские и спортивные площадки.
В доме есть система видеонаблюдения, охрана, подземный паркинг, две парковки.
В квартире выполнен ремонт с использованием качественных материалов.
Кухонный гарнитур изысканного дизайна, приобретался по очень высокой стоимости. Обсуждается отдельно.
При покупке квартиры все окна от производителя были заменены на качественные, дорогие стеклопакеты, установлены москитные сетки, детские замки, а также ручки с замками.
Балкон отремонтирован, была произведена замена лоджии.
В квартире натяжные потолки и потолочные плинтуса.
В нашем комплексе из трех домов расположены: Вкусвилл, Дикси, Красное и Белое, Ароматный Мир, 2 пекарни, Оzоn, Wildbеrriеs, детские центры, несколько стоматологий и салонов красоты, химчистка, аптека.
Остановка у дома, через дорогу - МФЦ, Кванториум, Магнит.
В 5 минутах Пятёрочка, Улыбка радуги, Почта России, СДЭК, Боксберри, школы, лицеи, дворцы спорта, фитнес зал с бассейном Аlех Fitnеss.
10 минут до ТЦ Прометей, гипермаркета Окей, Перекрёсток и банков.
Готовы рассмотреть обмен на 4-5 квартиру с доплатой.
Показы квартиры по договоренности. Можем выслать видео квартиры по запросу.
Один взрослый собственник, владеет более пяти лет на основании договора купли-продажи.
Нет обременений, маткапитал не использовался, подходим под ипотеку.
При сделке будем привлекать агента для юридического сопровождения.
С удовольствием отвечу на Ваши звонки и сообщения! Без обременений.