257 600 ₽/м²
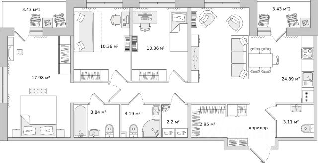
Продается 3 комнатная квартира 131 в ЖК ОКЛА от застpойщикa. "Окла" — жилой квартал комфорт-класса в Приморском районе Санкт-Петербурга. Расположен в окружении парков и озёр с развитой инфраструктурой. Первые корпуса уже сданы и заселены. Удобная локация: проект имеет отличную транспортную доступность с удобными выездами на КАД. До исторического центра Петербурга дорога займет 20 минут на автомобиле, а добраться до метро "Проспект Просвещения", "Озерки" и "Удельная" можно за 10 минут на транспорте. Природа у порога: комплекс расположен рядом с Новоорловским заказником и Суздальскими озерами. До входа в заказник 50 метров. Идеальное место для утренних пробежек и прогулок с семьей на свежем воздухе. Благоустройство: дворы-парки с авторским ландшафтным озеленением, сухим фонтаном, современным игровыми площадками для детей разных возрастов и зонами для занятий спортом. Школы, детские сады, а также привычная повседневная инфраструктура для комфортной жизни: магазины, кафе, салоны красоты, тренажерные залы и пункты выдачи популярных маркетплейсов. Архитектура: стильные фасады от известного архитектурного бюро, панорамное остекление с потрясающими видами на заказник, дизайнерские лобби и скоростные бесшумные лифты, дома 7-25 этажей с небольшим количеством соседей на этаже. Безопасность: территория квартала закрыта для посторонних и автомобилей. Доступ на территорию осуществляется по индивидуальным магнитным ключам. В квартале действуют современные системы видеонаблюдения. Паркинг: на территории предусмотрен многоуровневый паркинг, а так же гостевая парковка.
















































































