


458 824 ₽/м²
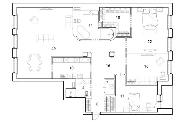
ID 8508 - пожалуйста, сообщите этот номер нашему менеджеру. Редкое предложение: уникальная квартира в легендарном ЖК "Каменноостровская коллекция" Клубный дом премиум-класса от Строительной корпорации "Возрождение Санкт-Петербурга". Несомненные преимущества: • Идеальная планировка для жизни: три изолированные комнаты с видом на тихий двор, просторная кухня-гостиная с окнами на Каменноостровский проспект и особняк Игеля, вместительная гардеробная, два санузла. Двухсторонняя квартира с потолками 3,2 м и большим холлом — всё для максимального комфорта. • В квартире изначально выполнен дорогостоящий качественный ремонт с соблюдением современных технологий и энергономичности пространства. • Камерность и изоляция: всего 3 квартиры на этаже, монолитно-кирпичный дом с превосходной шумо- и теплоизоляцией (деревянные стеклопакеты, немецкие радиаторы). Статусные парадные с биометрией — тишина, комфорт и безопасность гарантированы. • Собственный сквер у дома — ваш личный природный оазис. • Идеальное расположение в сердце Петербурга: 10 минут пешком до метро "Петроградская". Утром — прогулки в Вяземском саду или вдоль Малой Невки, вечером — рестораны и парки Крестовского острова. Экология, престиж и все удобства на расстоянии вытянутой руки! • Машино-место в подземном паркинге в собственности — можно докупить по вашему желанию. • Юридическая чистота: первый собственник. Купить 3-комнатную квартиру 3-комнатных квартир в Каменноостровская коллекция На проспекте Каменноостровский в Санкт-Петербурге.





























































































