Продаётся квартира БАЙКЕРА! Эксклюзивное предложение!
Уникальное планировочное решение и дизайн квартиры. Светлая (в квартире 6 больших окон), просторная 3 комн квартира в кирпичном СТАЛИНСКОМ доме 1959 года, с высокими потолками 2,90 м.
Важные преимущества Квартиры:
- толстые кирпичные стены (60 см) обеспечивают помимо тепла, полную шумоизоляцию (соседей не слышно, и вас тоже)
- трансформируется под любые запросы, потребности, виды деятельности: может быть мастерской, для коммерческого использования с одновременным проживанием во второй половине квартиры; офисом; квартирой для семьи или для увлекающегося рыбалкой, охотой, лыжами и какими-либо иными видами активности или творчества Человека (огромное количество закрытых мест для хранения инвентаря, сейфы) (кухня приспособлена для самогоноварения);
- преимущество 1 этажа в том, что при желании вы можете хоть мотоцикл припарковать в одной из комнат;
- при необходимости можете перевести в нежилой объект (под квартирой сухой, чистый подвал, используется как коммерческое помещение) и/или сделать дополнительные входы в квартиру;
- по периметру квартиры, снаружи, установлено 4 камеры видеонаблюдения;
- установлен кондиционер;
- оставлены стены с натуральным кирпичом (полностью очищен, обработан пескоструем), что добавляет квартире брутальности;
- в квартиру заведено 7 кВт;
- в квартире сделана перепланировка. Наружные границы квартиры не изменены, мокрые точки не переносились, несущие стены на месте. Ремонт делался для себя: заменена вся проводка, трубы (пластик), поменяна сантехника, смесители, пол (утепленный, по финской технологии, гарантия 50 лет, напольное покрытие, окна (2х камерные стеклопакеты с защитой от УФ), двери (железные, антивзломные).
- окна квартиры выходят на три стороны.
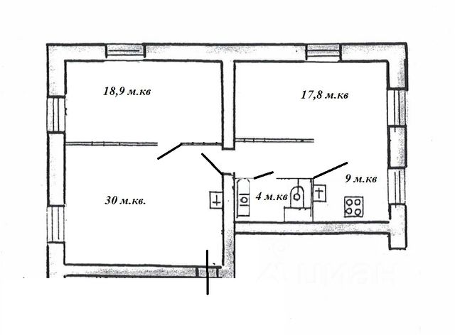
Общ.пл. 80,1 м.кв
Жил.пл. 66,7 м.кв (комнаты 30+18,9+17,8 м.кв.)
Кухня 9 м.кв
Совмещенный санузел в кафеле с ванной. Газовая колонка.
Цокольный, высокий 1 этаж 5 этажного здания.
Спокойные, тихие и очень лояльные соседи. Все друг друга знают, дружат. Во дворе всегда есть место, где припарковать мотоцикл и/или машину.
Надежная и качественно относящаяся к своему делу, управляющая компания.
Дом находится в районе с развитой инфраструктурой: в шаговой доступности продуктовые магазины, кафе и рестораны, фитнес залы, торговые центры, детские сады и школы, салоны красоты.
Метро Московская в 4 минутах пешком, остановка общественного транспорта напротив дома.
Юридическая чистота: один взрослый собственник, на сделке будет присутствовать. Собственность более 20 лет. Документы готовы. Обременений нет. Полная цена в договоре. Прямая продажа.
Единичное, редкое предложение на рынке недвижимости. Звоните для просмотра!