


600 030 ₽/м²
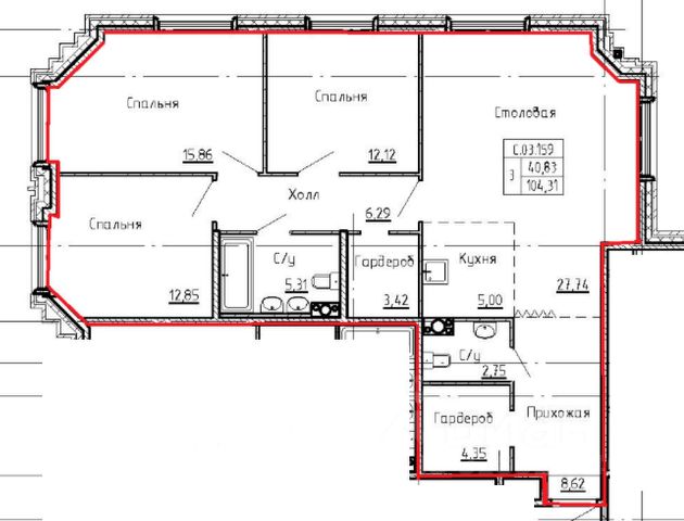
Продается четырехкомнатная квартира от застройщика с предчистовой отделкой в ЖК "ЛЕГЕНДА на Охте" на 14 этаже. Общая площадь: 136.2 кв.м. Высота потолков 2.7 м. Квартира находится в корпусе B. Дом монолитный, двухподъездный, высотой 14 этажей. На этаже 6 квартир. В подъезде 1 пассажирский и 1 грузовой лифт. Начало строительства - 1 квартал 2026 года. Окончание строительства - 4 квартал 2029 года. Оформление сделки по договору долевого участия. В шаговой доступности от жилого комплекса расположены станции метро (расстояние по прямой): "Новочеркасская" (1.1 км), "Ладожская" (1.3 км), также недалеко от этого корпуса находятся станции метро: "Площадь Александра Невского", "Чернышевская", "Площадь Восстания". Охта — район с выраженным индустриальным характером и архитектурным наследием XX века. Северная часть территории характеризуется сложившейся застройкой и социальной инфраструктурой, которые формируют образ жилого района комфорт-класса. Южная часть расположена ближе к набережной Невы и историческому центру города. Здесь активный ритм деловой и культурной жизни, знаковые памятники архитектуры и развитая транспортная сеть. Именно здесь, на приватной территории, сформированной извилистым течением реки Охты, расположен кластер статусных жилых проектов, ансамбль которого завершает проект "ЛЕГЕНДА на Охте". "ЛЕГЕНДА на Охте" — новый проектс высокими продуктовыми стандартами LEGENDA: продуманный выбор планировочных решений, технологичная комплектация квартир, авторская модель благоустройства, приватность и сервисы. Паркинг и кладовые 10 минут езды до центра города, набережной Невы, деловых кластеров. В шаговой доступности все необходимое для жизни: статусный молл, бизнес-центры, фитнес-студии, парки и супермаркеты. Квартиры спроектированы на базе лучших планировочных решений: дизайнерские квартиры, светлые кухни-гостиные с угловым остеклением, просторные мастер-спальни с собственными санузлами и гардеробными, видовые террасы и лоджии c панорамным остеклением, отдельные зоны хранения и удобные постирочные. Широкий выбор типологий: функциональные планировки разной площади, подходящие для семей с детьми, пар или индивидуального проживания. Благоустройство на основе авторской функционально-компонентной модели Приватный двор без автомобилей с контролем доступа. Зонирование территории: отдельные пространства для детей разного возраста, игровые и спортивные площадки, рекреационные зоны. Озеленение: крупномерные деревья и кустарники, цветочные композиции, учитывающие сезонность. Бесшовные внутридворовые маршруты. Комплектация квартир TechnoBox — технически подготовленное пространство и готовность к декорированию Современные инженерные системы: - готовность к установке "умных" устройств, сплит-лоджии для кондиционеров, подготовка под ПВУ. - Выровненные стены и полы, разводка под дополнительные розетки - Улучшенная шумоизоляция - Управление системами отопления - Алюминиевые оконные системы Квартира реализуется напрямую от 4-комнатная квартира в районе Красногвардейский в Санкт-Петербурге.






















































































