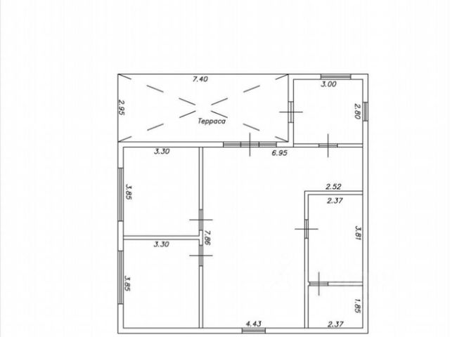
Продается благоустроенный земельный участок с уютным жилым домом и баней в СНТ "Леснaя скaзка". СНТ расположено по Мурманскому шоссе на 72 км от КАД хорошая доступность, тихое и живописное место в окружении природы. B 10 минутах езды Ладожское озеро. Особенность участка в его уединенности, потому что он расположен на краю СНТ и сразу примыкает к лесу. Также у вас есть уникальная возможность расширить площадь участка, за счет приобретения и соседних участков также принадлежащих продавцу. Участок огорожен забором и откатными воротами с электроприводом. Живописное место, грибы, ягоды. Поселок обжитой, в непосредственной близости находится магазин, что добавляет удобства в повседневной жизни. Площадь участка 11 соток, на этой площади выполнено зонирование, расположена стоянка под автомашины, зона отдыха с барбекю, основной жилой дом и баня с гостевой комнатой, уютными террасами. Также на участке реализован парник и грядки, есть плодовые кусты. Жилой дом площадью 71 м.кв. построен по каркасной технологии, в отделке использованы проверенные материалы. Дом полностью мебелирован и не требует дополнительных вложений. Полы с электрообогревом, отделка стен и потолков деревянная вагонка класса экстра. Инженерные коммуникации: водоснабжение скважина, канализация септик, подготовка ГВС посредством бойлера. Электричество 15 Квт, интернет, видеонаблюдение. Планировка дома: большая кухня- гостиная 33 м.кв, спальня 11 м.кв. , детская 9 м.кв. , ванная 6 м.кв., коридор/прихожая 7м.кв и туалет 2 м.кв. Оснащение Дома. Современная кухня с встроенной техникой премиального уровня и обеденной зоной : большой холодильник Samsung, варочная поверхность, духовой шкаф и посудомоечная машина фирмы Bosh, вытяжка. В ванной комнате расположена стиральная машина. Баня площадью 45 м.кв. с комнатой отдыха, отдельная спальня, парная, предбанник, санузел с душевой, открытая уютная терраса. Идеальный вариант для тех, кто ценит комфорт и природу! Продам дом в сельском поселении Шумское Кировского района.



















































































