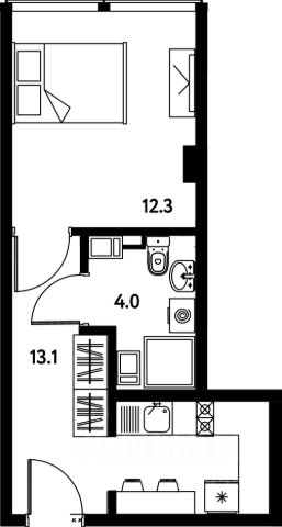
Однокомнатная квартира-студия с отделкой в ЖК "ORO by Akvilon" на 2 этаже. Общая площадь: 29.61 кв.м., площадь гостиной 19.88 кв.м., из которых 5 кв.м. выделено под кухонную зону. Все окна выходят на одну сторону. В квартире одна лоджия, один совмещенный санузел. Высота потолков 2.85 м.
Дом монолитный, двухподъездный, высотой 17 этажей. Квартира находится в 1-й секции в корпусе 2. На этаже 7 квартир. В подъезде 1 пассажирский и 1 грузовой лифт. Окончание строительства - 4 квартал 2027 года. Оформление сделки по договору долевого участия.
В шаговой доступности от жилого комплекса имеется станция метро (расстояние по прямой) "Звёздная" (800 м), также недалеко от этого корпуса расположены станции метро: "Купчино", "Московская", "Ленинский Проспект", "Дунайская".
ЖК "ORO by Akvilon" - старт продаж жилого комплекса бизнес-класса в Московском районе.
-Панорамные окна в пол во всех квартирах
-Алюминиевые оконные профили с многокамерными стеклопакетами
-Французские балконы с золотой окантовкой
-Высота этажа 3,15 метра
-Увеличенные дверные проемы - 2,3 метров высотой
-Выделенные места для кондиционеров на каждом этаже
-Фреоновые трубки заведенные в квартиру от мест установки внешних блоков кондиционеров
-Дизайнерская отделка гранд-лобби с биокамином и золотыми элементами
-Импортные бесшумные лифты с дизайнерской отделкой и увеличенной высотой кабины
Отделка квартир
Премиальная отделка в двух цветовых решениях: Beigestone и Greystone. Дозаказ для любой квартиры
Стандарты Группы Аквилон для вашей комфортной жизни
Thermo-S экономия на коммунальных платежах за счет дополнительно утепленных стен, кровли и цоколя. Энергоэффективные окна с селективным покрытием и аргоновым заполнением Soundstop - дополнительная шумоизоляция внутренних перегородок и межэтажных перекрытий, шумозащитные окна, малошумные лифты Light-in - в квартирах комфортный микроклимат. Многокамерные стеклопакеты сохраняют тепло зимой и отсеивают излишки излучения солнечного света летом, сохраняя прохладу в помещении.
Vent-in - в каждой комнате есть клапаны индивидуальной вентиляции, которые обеспечивают приток свежего воздуха с улицы.
inHOME умный дом в каждой квартире Интеллектуальная цифровая система, которая позволит дистанционно решать бытовые вопросы, управлять квартирой и экономить на оплате коммунальных услуг. В состав inHOME входят: IP-домофон, Face key, "умные" счетчики, датчики протечки, дистанционное отключение розеток, и т.д.
Подземный паркинг
-Лифты в каждой секции со спуском в паркинг
-Отделка лифтовых холлов паркинга в стиле Гранд лобби + дизайнерская навигация самого паркинга
-Возможность установки электрозарядки в паркинге или на территории ЖК
-GSM усилитель в паркинге
Двор
-Ландшафтный дизайн с геопластикой и цветочными аркадами
-Сад цветущих сезонов
-Разноуровневая подсветка
-Детские площадки нового поколения
-Живой зелёный забор
-Закрытый двор без машин
Локация
-7 мин. до м. Звездная
-10 мин. до м. Московская -15 мин. до аэро