468 688 ₽/м²
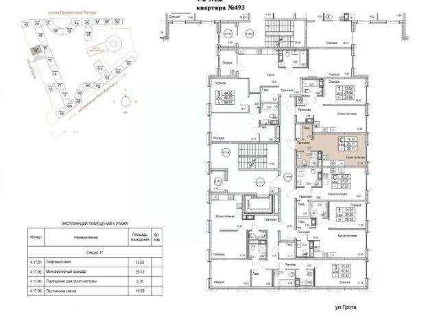
Срочная продажа! Предлагаются по переуступке апартаменты-студия в строящемся ЖК премиум-класса 17/33 Петровский остров. Об апартаменте: - общая площадь 25,39 м2, жилая 17,34м2; - дизайнерская отделка под ключ входит в стоимость; - апартаменты расположены в секции Club. О ЖК: - Уникальное расположение комплекса между Петровским парком и набережной Малой Невы позволило реализовать проект так, что все апартаменты являются видовыми; - тишина и спокойствие сравнимое с загородной жизнью в центре города; - Все апартаменты сдаются уже с полной премиальной отделкой, не будет шума от ремонтов; - "Небесная гостиная" - пространство с панорамным рестораном от Антонио Фреза для жителей комплекса; - фитнес-зал от компании A-FITNESS, СПА комплекс, зал для семейных торжеств, коворкинг, детский клуб, лаундж библиотека; - благоустроенная территория от бюро "DEREVO PARK" с набережной и причалом для яхт; - для резидентов комплекса будут доступны услуги клининга, нянь и репетиторов, доставки продуктов и цветов, служба заботы о питомцах и т.п; - видеонаблюдение на всей территории комплекса с тревожной кнопкой в апартаменте с доступом к камерам со смартфона; - видеодомофон, универсальный ключ доступа для собственников ко всем общественным пространствам; - центральный кондиционер и вентиляция, датчики протечки воды; - система "Умный дом",управление светом. Один собственник, вся сумма по договору, без обременений.







































































