


636 364 ₽/м²
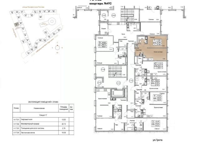
Арт. 101999314 Видовой апартамент в секции "LIFE" в престижном жилом комплексе "17/33 Петровский остров", из панорамных окон которого открываются живописные пейзажи на Петровский парк и пруд. Если вы хотите находиться в непосредственной близости к культурному и деловому центру, при этом жить в окружении природы и воды, - этот проект от Element Development точно для вас! До Центра - 15 минут на машине. Удобная развязка на ЗСД. В шаговой доступности Петроградская сторона с ее ресторанами, развитой социальной инфраструктурой и магазинами, а также Крестовский остров с зонами отдыха и досуга. При этом вся необходимая инфраструктура для комфортной и насыщенной жизни находится в самом комплексе: фитнес-клуб и SPA, кинозал, коворкинг, детская зона, библиотека, терраса с захватывающим видом на Неву и панораму города, ресторан. Апартамент общей площадью 66 м2 находится на 3-м этаже и имеет эргономичную планировку: 2 спальни правильной формы (12 и 13 м2), кухню-гостиную (19 м2) с выходом на лоджию (5 м2) и просторную прихожую с 2 санузлами. В стоимость также включена премиальная отделка от застройщика "Светлый Кашемир". Не упустите возможно приобрести апартамент для комфортной жизни в одной из самых престижных частей Петербурга по самой выгодной цене! По всем интересующим вопросам и для организации просмотров - звоните! Продам квартиру в новостройке с отделкой в районе Петроградский в Санкт-Петербурге.
























































































