


570 000 ₽/м²
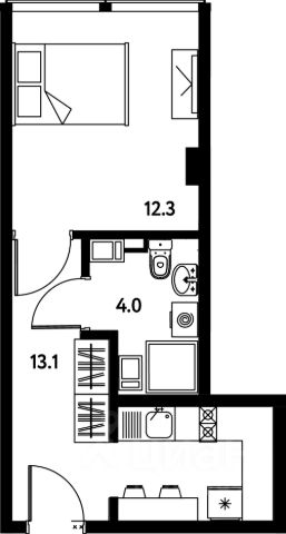
ЖИВИТЕ ВАШУ ЛУЧШУЮ ЖИЗНЬ В ПРОЕКТАХ ЭЛЕМЕНТ Квартира 19 в Коллекционном доме "1919" Дом сдан! Выдаем ключи! О проекте: КОЛЛЕКЦИОННЫЙ ДОМ "1919" представляет собой собрание лучших и эксклюзивных практик создания премиальной жилой среды в Северной столице. Проект расположен в Московском районе — уникальной локации Санкт-Петербурга, богатой историей и самой комфортной для проживания. Дом расположен в 15-ти минутах на авто от исторического центра Петербурга Невского проспекта, Исаакиевского собора и Московского вокзала. В радиусе 1 километра все самое важное для комфортной жизни: скверы, парки, торговые центры, спортивные клубы, а также театр и выставочные пространства. Клубный формат Коллекционного дома "1919" 11 этажей; Высота потолка до 5,7 метров; Всего 68 квартир и 43 машиноместа; 5-ть видов отделки, в том числе "Individual" персональный дизайн-проект от ведущей дизайнерской студии Петербурга; 250 м2 общественных пространств; Закрытый двор с эксклюзивным садом; Три бутиковых коммерческих помещения; Авторский дизайн общественных пространств; Передовые инженерные решения; ELEMENT создаёт инновационные жилые и коммерческие объекты в Санкт-Петербурге и Москве, которые устанавливают новые стандарты эффективной жизни в мегаполисах.














































































































