Только на Циан
Проспект Ветеранов
17 минут на транспорте
10 200 000 ₽
223 195 ₽/м²
АГЕНТАМ - НЕ ЗВОНИТЬ !
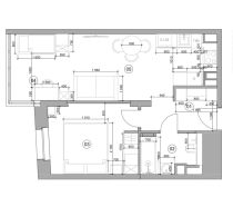
Продаётся просторная квартира с европланировкой, 2Е в ЖК бизнес- классаVeren Village Стрельна. Дом построен по монолитной технологии и введён в эксплуатацию во 2 квартале 2022 года. Закрытая территория ЖК, малоэтажные дома, благоустроенные дворы, озеро с пляжной зоной, физкультурно-оздоровительный комплекс с плавательным бассейном. Предусмотрены колясочные, подземный паркинг, коммерческие помещения, оборудованы детские площадки. Квартира без отделки, с панорамным остеклением. Расположена на 2 этаже трёхэтажного дома. На этаже всего 5 квартир. Планировка свободная - есть возможность создать индивидуальную, исходя из своих предпочтений. Формат 2Евро подразумевает наличие просторной кухни-гостиной, где предусмотрена кухонная зона, а также зона комфорта - с диваном, телевизором и т.д. Вторая комната - полноценная спальня. Высота потолков 2,8м.
Малоэтажный жилой комплекс Veren Village Стрельна расположен в престижном Петродворцовом районе Санкт-Петербурга с хорошей транспортной доступностью. До трамвайной остановки - минута ходьбы, до КАД можно добраться за 5 минут. До Ленты- 1 км, 15 минут до ТЦ Жемчужная Плаза, Константиновский парк в 9 минутах ходьбы, Финский залив в полутора километрах, метро Ленинский проспект и Автово 15-20 минут транспортом.
Архитектурный облик комплекса разработан знаменитым Бюро Остоженка. ЖК Veren Village Стрельна - это новый стандарт жилья бизнес-класса, совмещающий лучшее от мегаполиса и загородной жизни. Квартира от собственника.













































































