сдача ГК: 2 кв. 2026 года
Лесная
12 минут пешком
18 250 000 ₽
402 781 ₽/м²
1706109 Дом сдан! Идет приемка квартир! Акт приемки подписан.
RESPECT - это целый маленький город для жизни.
Представьте себе квартал, где есть всё необходимое и продумана каждая деталь. Здесь 12 домов разной этажности, но все они объединены общим стилем и уютной территорией.
Что здесь особенного?
Свой дом - своя крепость. Территория квартала закрыта для посторонних. Зайти просто так не получится - круглосуточно работают камеры и служба охраны. Можно не волноваться за детей или за то, что оставили велосипед у подъезда.
Дворы - только для людей. Ни одной машины во дворе. Совсем. Это сделано специально, чтобы дети могли спокойно играть, а взрослые гулять и отдыхать в тишине. Весь транспорт уходит на подземную парковку. Дорожки во дворе сделаны так, что по ним легко идти с коляской, кататься на велосипеде или даже на роликах.
RESPECT - это место, где можно просто жить и получать удовольствие, не думая о бытовых проблемах.
А теперь про одну конкретную квартиру, от которой просто захватывает дух.
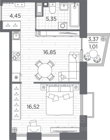
Представьте: вы заходите домой. Вас встречает просторная прихожая (почти 6 квадратных метров). Это не тесный коридор, где нельзя развернуться, а полноценное место, где удобно раздеться, повесить одежду в шкаф и даже поставить пуфик.
Проходите дальше и оказываетесь в сердце квартиры. Кухня здесь огромная в районе 18,65 м2. Это не просто место для готовки, а настоящая зона для жизни. Тут поместится и большой стол для семейных обедов, и мягкий диванчик с телевизором. Можно собираться с друзьями или просто пить кофе по утрам, глядя в окно.
Рядом уютная комната в 14,65 м2. Это ваша тихая спальня или место, где вы сможете устроить кабинет. Решать вам. Главное, что она отдельная, и там спокойно.
Ванная и туалет объединены, и это не просто "ванная", а просторное помещение в 5,05 м2. Можно установить большую ванну или душевую кабину, поставить стиральную машину и оставить место для полочек.
Отдельная гордость лоджия почти 4,34 м2. Это ваша летняя веранда, место для утреннего кофе или вечерних разговоров по телефону. А самое главное — с этих окон открывается отличный вид. Это та самая "видовая" квартира, про которую мечтают многие: ты смотришь не в стену соседнего дома, а вдаль. Больше информации на нашем сайте













































































