


334 000 ₽/м²
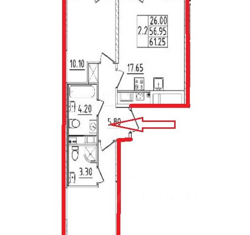
Двухкомнатная квартира от застройщика с предчистовой отделкой в ЖК "Сезоны" на 7 этаже. Общая площадь: 63.25 кв.м., жилая: 23.99 кв.м., площадь просторной кухни-столовой: 17.67 кв.м. Комнаты изолированные, все окна выходят на одну сторону. В квартире один балкон, два совмещенных санузла. Наличие в квартире террасы открывает возможность для создания зон отдыха в кругу семьи и друзей. Высота потолков 2.88 м. Дом монолитный, многоподъездный, высотой 7 этажей. Квартира находится в 1-й секции в корпусе 611. На этаже 4 квартиры. В подъезде 1 грузовой лифт. Начало строительства - 4 квартал 2025 года. Окончание строительства - 2 квартал 2028 года. Оформление сделки по договору долевого участия. Видовой жилой комплекс "Сезоны" от ГК ПСК возводится в одном из самых востребованных и престижных районов Санкт-Петербурга - Приморском, рядом с Суздальским и Выборгским шоссе. Такое расположение обеспечивает удобный выезд в разные части города, сочетая городской комфорт с близостью к природе. Всего в 50 метрах находится природный заказник "Новоорловский" и речка Каменка, а в пешей доступности - Суздальские озёра. Приморский район отличается развитой социальной и транспортной инфраструктурой. Здесь расположены крупные торговые и деловые центры, современные спортивные объекты, медицинские учреждения, магазины, кафе и рестораны. Комплекс включает четыре корпуса, ввод которых в эксплуатацию запланирован на 2028 год. Проект и прилегающий микрорайон разработаны в соответствии с концепцией "15-минутного города", при которой вся необходимая инфраструктура находится в шаговой доступности. В ближайшем окружении - две школы, пять детских садов, магазины, кафе, салоны красоты, банковские отделения и пункты выдачи заказов. Также предусмотрены два четырёхъярусных паркинга с лифтами на 288 машиномест. О застройщике ГК ПСК - один из крупнейших девелоперов Санкт-Петербурга с более чем 18-летней историей. Компания реализует проекты во всех сегментах недвижимости - от премиальных жилых комплексов до масштабных кварталов комфорт-класса и апарт-отелей. По данным портала ЕРЗ.РФ, ПСК входит в ТОП-3 крупнейших застройщиков Санкт-Петербурга по объёму текущего строительства. Портфель компании превышает 3 млн кв. м жилой и коммерческой недвижимости. Все объекты сдаются строго в срок и отличаются высоким уровнем архитектурных и инженерных решений. #ZTO04F


































































































