127 492 ₽/м²
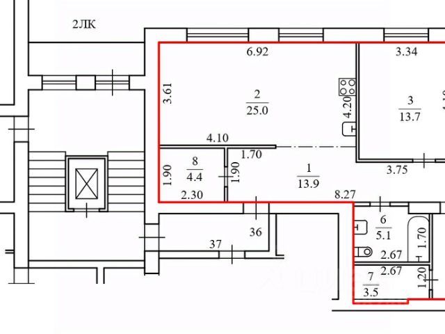
ID: 1914303 Продается очень комфортная 3-х комнатная квартира 95,3 кв.м. с большой кухней-гостиной в кирпичном доме в 25 минутах пешком от метро Большевиков. Имеется техническая возможность для создания второго санузла Имеется возможность разделение на две квартиры- студию и двухкомнатную. Квартира после полного капитального ремонта - с отделкой White Box. Был произведен полный демонтаж старой отделки. Работы, которые были сделаны: - Полная замена сетей водоснабжения и водоотведения с прокладкой всей внутренней разводки до точек водопотребления; - Замена электроснабжения с прокладкой всей внутренней разводки; * Сделана качественная стяжка пола под финишное покрытие; - Механизированная штукатурка стен: - Шпатлевка и подготовка стен под чистовую отделку; - Заменены стояки отопления и установлены новые радиаторы; - Установлены новые стеклопакеты и подоконники. На территории сделано озеленение. Детская и спортивная площадки во дворе. Очень удобное транспортное сообщение: по 25 мин пешком до двух станций метро пр. Большевиков и Дыбенко. Развитая инфраструктура - рядом детские сады и школы, поликлиники. В шаговой доступности находятся продуктовые, сетевые магазины, аптека, салон красоты и т.д. Обременений нет. Звоните, на все вопросы с удовольствием отвечу. Просмотры в удобное для вас время.










































































