157 163 ₽/м²
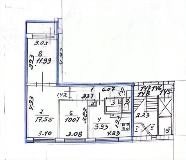
Квартира полностью под ремонт. Заменены только окна в кухне, в 2-х комнатах, и заменены 2 радиатора - на этом всё. Очень хорошая локация, зелёные большие дворы, в соседнем доме поликлиника, школа, детский.сад, множество магазинов и прочей удобной инфраструктуры, до метро 12 мин.пешком. Отличный вид из окон в зелень с 2х сторон, чистый подъезд с новым лифтом, кафелем, стеклопакетами. Своё ТСЖ, в доме очень чисто. Прямая продажа, полная цена в договоре, с 2004 года квартира в одной семье, никто не прописан и не проживает, долгов и обременений нет, 2 взрослых собственника, ключи в день сделки, подходит любая форма оплаты.










































































