Продается просторная и красивая квартира, расположенная на 8 этаже в 24 этажном доме в ЖК Юбилейный квартал в Приморском районе Санкт-Петербурга.
Квартира очень светлая. Окна выходят на 2 стороны.
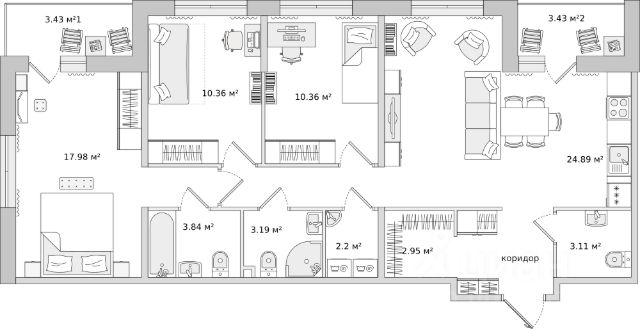
Три просторные комнаты (18 кв.м., 18,9 кв.м, 20,2 кв.м) с большими окнами, одна из которых (20,2 кв.м) имеет два окна и выход на лоджию (2,5 кв.м).
В обеих спальнях есть двухспальные кровати и шкафы для хранения. В гостиной большой светлый диван и шкаф для хранения.
На кухне (14.1 кв.м) установлена качественная бытовая техника марки ELECTROLUX - варочная панель, духовой шкаф и посудомоечная машина. Кухонный гарнитур идеально вписывается в пространство кухни. Так же есть небольшая барная стойка.
В квартире есть два санузла (5 кв.м и 3,6 кв.м.) В которых помимо отдельных шкафов очень удобно расположены встроенные шкафы для хранения. Установлены системы вентиляции.
В прихожей и коридоре (общая площадь 17,8 м.кв) так же установлены встроенные шкафы для хранения. В прихожей шкафы с зеркальными дверями.
На кухне, в прихожей и коридоре, а так же в обоих санузлах, есть теплые полы.
В комнатах на полу - паркетная доска. На стенах в прихожей, комнатах и на кухне - качественные моющиеся обои.
На потолках по всей квартире смонтированы глянцевые натяжные потолки, cо встроенными светильниками и люстрами.
В квартире установлен скоростной интернет, в каждую комнату проведен TV кабель.
Комфортное и уютное проживание в квартире продумано до мелочей.
В доме - чистые уютные парадные. Три бесшумных лифта. Соседи приятные и вежливые. Есть наземные парковочные места и платный паркинг.
Застройщиком ЖК Юбилейный квартал является известная строительная компания ЛенСпецСМУ. Дом построен по кирпично-монолитной технологии, снабжен системами пожаротушения. В парадных установлено видеонаблюдение и оборудованы места для работы консьержей. В в доме установлен навесной вентилируемый фасад, обеспечена хорошая шумоизоляция.
Развитая инфраструктура Приморского района - это большое количество торговых центров ( рядом с домом есть гипермаркет Лента), современные детские сады и школы, хорошие клиники и удобные дорожные развязки (в 10 минутах от дома - по Шуваловскому проспекту, шикарная развязка на ЗСД и КАД с выездом на юг и на север города)
В самом доме расположена аптека Озерки, пиццерия, пекарня, магазин Вкусвилл, пункт Wildberries. Во дворе дома расположен престижный Морской лицей с 1 по 11 класс.
В пешей доступности - центры для развития детей, клиника, магазин Улыбка Радуги, МФЦ и многое другое. Что позволяет комфортно планировать повседневные дела, даже не пользуясь автотранспортом.
В квартире 3 взрослых собственника. Без обременений. Готовы быстро выйти на сделку.
Пишите, звоните! Мы с удовольствием покажем нашу квартиру!