


246 476 ₽/м²
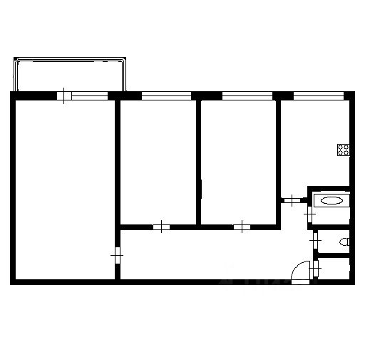
Номер объекта: 537558. Если вы ищите просторную 3 ком.кв. с большой гостиной и видовыми характеристиками в престижном и зеленом районе Петербурга по доступной цене с возможность воплотить любое дизайнерской решение на свой вкус (не тратя деньги на демонтаж и пр. вещи), то смело можете остановиться на этом варианте. Добавляйте в избранное и записывайтесь на просмотр. ПРО КВАРТИРУ: Эргономичная планировка, полноценные 3 изолированные комнаты, два санузла, лоджия и балкон. Окна выходят во двор и на улицу Вавилова. Утепленные лоджия и балкон. Эркерная гостиная площадью 27.9 м2, с большим окном и выходом на балкон 5.3 м2, направление запад и северо-запад. Балкон можно использовать как рабочий кабинет или зону для спорта. Спальни правильной прямоугольной формы: 15,4 м2 и 14,9 м2, направление север. Кухня-гостиная правильной прямоугольной формы с возможностью зонирования 28.6 м2 с выходом на застекленную лоджию 2.2 м2, направление север. *Подчистовая (белая отделка), возможность сделать чистовую отделку по своему дизайн-проекту, прямая продажа, без долгов и обременений, документы готовы к сделке. ПРЕИМУЩЕСТВА: Комфортная, семейная планировка; Выполнены все черновые работы; Отлично развитая инфраструктура; Пешая доступность метро Академическая; Дом ТСЖ; Невысокие коммунальные платежи. ПРО ДОКУМЕНТЫ И СДЕЛКУ: Один взрослый собственник (не пенсионер); В собственности более 15 лет; Документы готовы к сделке; НЕТ представителей по доверенности, собственник в СПб; Прямая продажа, мат.кап НЕ использовался, НЕТ обременения, долгов, встречек, цепочек и прочих нюансов, которые могут поставить под угрозу сделку Звоните, я буду рада ответить на любые вопросы! До встречи на показе! Продается 3-комнатная квартира с балконом в районе Калининский в Санкт-Петербурге.




















































































