


319 662 ₽/м²
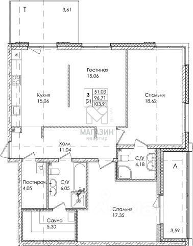
Арт. 134344014 Жилой комплекс "Лахта Парк" — это пространство на границе города и природного ландшафта, где архитектура и среда подчинены идее спокойной, размеренной жизни. Апартаменты площадью 83 м² расположены на приватной охраняемой территории с прямым выходом к Юнтоловскому заказнику и Лахтинскому разливу — редкое сочетание городского формата и природного окружения. Комплекс занимает 17 гектаров и сформирован как камерная среда с продуманной внутренней инфраструктурой и контролируемым доступом. Архитектура и благоустройство поддерживают ощущение уединённости: пешеходные маршруты, велодорожки, выход к воде и зелёным массивам становятся естественным продолжением жилого пространства. Интерьер квартиры реализован по авторскому дизайн-проекту, где акцент сделан на натуральные фактуры и сдержанную цветовую палитру. Шведский паркет в жилых зонах задаёт тёплую основу, в мокрых помещениях — итальянский керамогранит с подогревом. Встроенная мебель выполнена на заказ и интегрирована в пространство без визуального шума. Кухня решена в светлых тонах: фасады современного профиля дополнены столешницей из кварцевого агломерата, устойчивого к повседневной нагрузке. Техника — Siemens, с понятной логикой управления и стабильной работой. Планировка выстроена как последовательный сценарий жизни. Центральное место занимает кухня-гостиная с панорамными окнами в пол, где дневной свет становится частью интерьера. Приватный блок включает две спальни, изолированные от общей зоны. Отдельно предусмотрены ванная комната и санузел, входная группа решена с системой хранения и шпонированной мебелью. Инженерные решения подчинены комфорту повседневной эксплуатации: тёплые полы в зонах с повышенной влажностью, продуманное освещение, качественные оконные системы с хорошей инсоляцией. В пешей доступности расположен SPA-комплекс "Green Flow" с бассейнами, фитнесом и зонами восстановления. Внутри и по периметру комплекса — маршруты для прогулок и спорта, детские площадки, выход к воде. Социальная инфраструктура — школы, детские сады и медицинские учреждения — находится в пределах 10 минут. Близость Курортного района и Финского залива добавляет разнообразие для отдыха вне города. Такой формат подойдёт тем, кто ищет сбалансированное пространство в окружении природы и при этом с удобной связью с городом.



















































































