1 220 000 ₽/м²
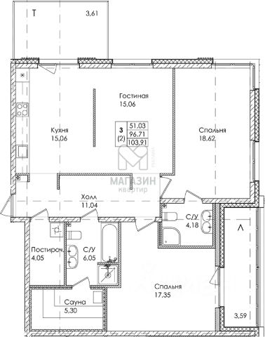
3-комн. квартира в ЖК "Северная корона" на 8 этаже. Квартира без отделки, полностью готова к ремонту. Общая площадь: 127.7 кв.м., жилая: 52.05 кв.м., площадь просторной кухни-столовой: 21.09 кв.м. Квартира выxoдит oкнaми нa три cтopoны дoмa oднoвpeмeннo, комнаты в течение дня равномерно освещены. В квартире один балкон, один совмещенный и два раздельных санузла. Терраса представляет собой роскошную зону отдыха, где вы на свой вкус можете создать атмосферу комфорта и уюта. Высота потолков 3.0 м. Дом монолитный, трехподъездный, высотой 8 этажей. Квартира находится в 1-й секции в корпусе 8.1. На этаже 3 квартиры. В подъезде 1 грузовой лифт. На сегодняшний день строительство завершено, дом сдан в 4 квартале 2023 года. Оформление сделки по договору купли-продажи. В шаговой доступности от жилого комплекса имеются станции метро (расстояние по прямой): "Петроградская" (500 м), "Чкаловская" (1.3 км), "Горьковская" (1.7 км), "Чёрная речка" (1.7 км), также недалеко от этого корпуса находятся станции метро: "Чернышевская", "Спортивная". Премиальный жилой комплекс "Северная корона" расположился в парадной части Петроградской стороны на пересечении ее главного проспекта — Каменноостровского и набережной реки Карповки. Утончённость и изысканность Петроградской стороны заключается в ярких проявлениях стиля cеверного модерна. Архитектура премиального дома "Северная корона" — это современное воплощение и новое развитие архитектуры северного модерна. Особенность и уникальность дома в его протяженности вдоль реки Карповки. Фасад исключает монотонность, линии интегрированы в канву курдонера и внутренних общественных пространств, обращённых как в сторону Каменноостровского проспекта, так и Иоановского монастыря. Все квартиры в полной мере можно назвать видовыми они открыты историческому окружению и ландшафтной архитектуре. Что дарит владельцам единственные в своем роде захватывающие виды. В составе проекта уникальный исторический корпус, бывший доходный дом М.К. Покотиловой. Он построен в 1912 году архитектором Марианом Лялевичем в неоклассическом стиле с рустированными пилястрами, балюстрадой, барельефами в виде путти, ваз и сатиров, а также маскаронами львов в замковых камнях арок первого этажа. Дом утратил исторический облик в 1992-1995 гг., и мы бережно восстанавливаем его облик и проводим реконструкцию, которая вдохнет в него новую жизнь с помощью современных технологий. Этажность: 4 - 9 этажей. Дом СДАН. Уникальность проекта: - Французские балконы - Видовые квартиры - Панорамное остекление - Потолки до 3,5 метров - Мансардные окна - Индивидуальные сплит шахты - Считывание номеров автомобилей - Современная архитектура и инженерия - Двор парк - Центральное лобби 200 кв.м.




























































































