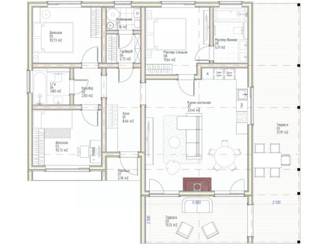
Деревня Раздолье Приозерского района: Ваш уютный уголок в живописной природе Ленобласти! Почему именно Раздолье? Современные решения по сочетанию материалов обеспечивают идеальное соотношение цены и качества! Мы предлагаем вам комфортное проживание в экологически чистом районе Ленинградской области с прекрасными условиями для отдыха и постоянного проживания. Надежное строительство: Фундамент: монолитная плита Стены: пеноблок (200 мм) Перекрытия: брус (залит армопояс) Отделка: имитация бруса Утеплитель: пенополистирол (50 мм) Кровля: ондулин Фасад: сайдинг Забор: рабица (ворота + калитка) Удобства инфраструктуры: Электричество: 15 кВт Вода: колодец (зимний водопровод) Отопление: конвекторы Участок: просторный и готовый к освоению Транспортная доступность: Как добраться до Санкт-Петербурга: Деревня Раздолье находится в Приозерском районе Ленинградской области, примерно в 100 км от Санкт-Петербурга. Вы можете легко доехать до города несколькими способами: Автомобилем: По трассе Е18 (Санкт-Петербург — Приозерск) около 1 часа 30 минут пути. Общественным транспортом: Регулярные автобусы отправляются от станции метро Девяткино до Приозерска, откуда можно воспользоваться местным автобусом до деревни Раздолье. Ближайшая станция метро в Санкт-Петербурге: Девяткино: Начальная точка маршрута общественного транспорта до Приозерска. Озера и природные красоты вокруг: Раздолье окружено потрясающей природой, богатой озёрами и лесами: Озеро Суходольское: Идеально подходит для рыбалки, купания и прогулок на лодках. Озеро Вуокса: Одно из крупнейших озёр Карелии, популярное среди туристов и любителей активного отдыха. Национальный парк Приозерский: Прекрасное место для пеших и велосипедных маршрутов, наблюдения за птицами и животными. Достопримечательности поблизости: Город Приозерск: Исторический центр с музеем истории и архитектуры, старинными храмами и памятниками культуры. Карельский перешеек: Уникальное сочетание природных ландшафтов и исторических памятников. Финансовые преимущества: Ипотека: Доступна сельская ипотека и стандартные ипотечные программы. Материнский капитал и сертификаты: Возможность использовать государственные выплаты для покупки дома. Субсидии: Поддержка молодых семей и льготников. Условия аренды с выкупом: Срок от 1 года до 30 лет под 14% годовых. Оплата: Без первоначального взноса, справок, залогов и поручителей. Профессиональное сопровождение: Мы — отдел продаж застройщика-собственника. Наши специалисты готовы оказать полное содействие в выборе, оформлении документов и сопровождении сделки. Свяжитесь с нами прямо сейчас! Работаем без выходных и праздничных дней. Подберём оптимальное решение для вашей семьи и организуем просмотр вашего будущего жилища в любое удобное время. Живите комфортно, наслаждайтесь природой и качеством жизни вместе с нами!










































































