245 726 ₽/м²
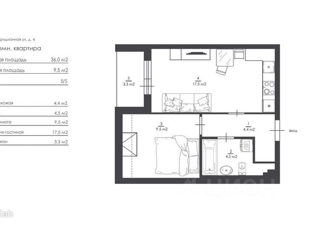
В прямой продаже квартира-студия с полным оснащением, потолками 3 метра и собственной террасой! Московский район! Уютная и светлая квартира со свежим ремонтом, удачной планировки. Вся мебель и техника остаются будущему собственнику в подарок! КВАРТИРА - Квартира общей площадью 23,4 метра. - На площадке всего 3 квартиры! Минимум соседей и шума. - Мансардный этаж - Качественный ремонт евро-формата, теплый пол в санузле. - Мебель и техника остаются будущему собственнику, все в хорошем состоянии-минимальный износ. - Окна квартиры выходят на дворовые территории с благоустройством. - Санузел совмещен и грамотно зонирован. ДОМ - Комплексное освоение территории от одного из лучших и ведущих застройщиков Санкт-Петербурга. - Малоэтажная застройка. - Жилой комплекс комфорт класса. - Долговечная кирпично-монолитная технология строительства. - Дворы закрыты от машин. - Развитая система коммерческих помещений. ТЕРРИТОРИЯ - Выполнено ландшафтное озеленение, во дворах очень много кустарников и деревьев. - Территория закрыта по периметру дворы, свободные от машин. ЛОКАЦИЯ - Московский район. - Два детских сада и две школы в составе жилого комплекса. - Аэропорт Пулково в 15 минутах езды. - Удобный выезд на КАД и ЗСД в 15 минутах езды, до центра 30 минут езды. - Остановки общественного транспорта в непосредственной близости, до метро 20 минут транспортом. ДОКУМЕНТЫ - Один взрослый собственник. - ПЕРВАЯ продажа, квартира покупалась у застройщика по ДДУ. - Полная стоимость в договоре сделка без рисков. - Квартира на данный момент в ипотеке, ипотека будет закрыта ДО сделки. - Материнский капитал не использовался. - Подходит под ипотеку, поможем с одобрением работаем с ведущими банками-партнерами. Эта квартира — идеальный вариант как для собственного проживания, так и для сдачи в аренду. Прекрасное сочетание уюта, функциональности и местоположения. Добавьте в избранное, чтобы не потерять этот шанс! Пишите, звоните — с радостью отвечу на все вопросы!


















































































