Арт. 134890553 Добро пожаловать в квартиру, расположенную в жилом комплексе Доминанта - одном из лучших в Московском районе.
Дом и район:
Стоит ли говорить, что Московский район - один из самых премиальных, желанных для покупателя недвижимости в нашем городе?
Чаще других его выбирают за комфортную транспортную доступность к аэропорту и центру города, за большое количество зеленых зон и парков, за малое количество промышленных зон и отлично налаженную социальную инфраструктуру.
Новые дома в Московском районе - штучный товар, а семейные квартиры в них - на вес золота.
В данном комплексе есть встроенно-пристроенный ТЦ с большим количеством магазинов на любой вкус и под любую задачу, в рамках того же строения (служащего пандусом ЖК), есть большой семейный спортивный клуб и подземный паркинг дома.
Немаловажно: вокруг расположено еще несколько ЖК бизнес-класса, вместе создающих однородный социальный и архитектурный ансамбль, что придает еще большую ценность земельному пятну.
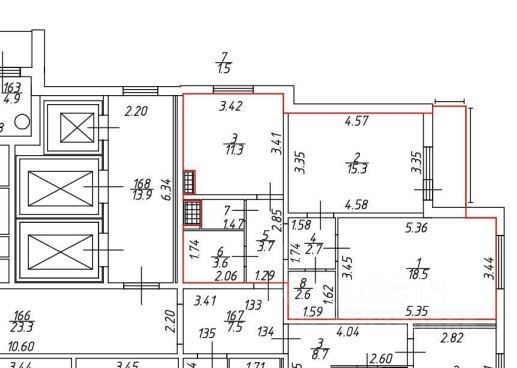
Квартира:
Сегодня мы рады представить именно семейную квартиру в замечательном доме и месте, основные конструктивные особенности которой:
Видовая, хорошо освещенная, с окнами во двор;
Свежий ремонт, не требующий вложений: отделка и оснащение с использованием премиальных материалов, в том числе: натуральный камень на всех обеденных поверхностях и подоконниках; техническое оснащение типа "встроенный", большое количество систем хранения и многое другое, что обозначает состояние ремонта "въезжай и живи".
Распашная планировка;
Три комнаты: просторная кухня-гостиная, две спальни.
Большой коридор с хранением;
Два с/у с душевой и ванной;
Теплый контур квартиры увеличен за счет присоединения и утепления лоджии;
Варианты парковки автомобиля: подземный паркинг с лифтом/ парковка во вдоре на пандусе дома с охраной и шлагбаумом;
Документы:
Один взрослый собственник, будет лично присутствовать на сделке.
Пакет документов подготовлен, собственник и объект прошли проверку и рекомендованы к сделке.
Звоните, обсудим детали объекта и договоримся о просмотре!
Предлагаем ПРЕМИАЛЬНОЕ обслуживание для требовательных клиентов.
Оперативно организуем просмотр, предоставим полную информацию по объекту.
20 лет работы с требовательными клиентами подготовили нас к решению ВАШИХ сложных задач.
Будем рады знакомству! Ул. Рубинштейна, д.8.