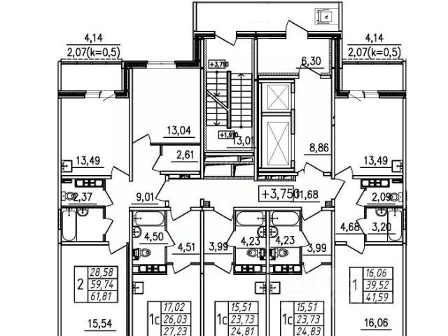
Продается 1-комн. квартира-студия от застройщика с предчистовой отделкой в ЖК "Аквилон Солар" на 2 этаже. Общая площадь: 24.67 кв.м., площадь гостиной 13.04 кв.м., из которых 5.08 кв.м. выделено под кухонную зону. Все окна выходят на одну сторону. В квартире один балкон, один совмещенный санузел. Высота потолков 2.7 м.
Дом монолитный, многоподъездный, переменной этажности, от 10 до 12 этажей. Квартира находится в 1-й секции высотой 12 этажей в корпусе 1. На этаже 6 квартир. В подъезде 1 пассажирский и 1 грузовой лифт. Окончание строительства - 3 квартал 2028 года. Оформление сделки по договору долевого участия.
Аквилон Солар — это пространство нового городского ритма, где свет становится частью архитектуры, а форма — отражением внутренней гармонии. Здесь всё подчинено идее современного комфорта и спокойной уверенности в завтрашнем дне. Дом стремится стать естественным продолжением жизни: сбалансированной, продуманной, наполненной энергией света и движения. Это место, где архитектура не давит, а поддерживает, где город чувствуется, но не мешает, и где каждая деталь говорит о вкусе, внимании и уважении к человеку.
Преимущества
Повышенная инсоляция квартир
Планировки продуманные до мелочей
Большие кухни-гостиные до 27,3м2
Мастер-спальни
Высота потолков до 2,85 м
Увеличенные окна
Школы и детские сады в пешей доступности
Экопарк на 3 гектара
Отделка квартир
Чистовая отделка в трех цветовых решениях: Sand, Terra и Graphite
Дозаказ для любой квартиры
Стандарты Группы Аквилон для вашей комфортной жизни
Thermo-S экономия на коммунальных платежах за счет дополнительно утепленных стен, кровли и цоколя. Энергоэффективные окна с селективным покрытием и аргоновым заполнением
Soundstop - дополнительная шумоизоляция внутренних перегородок и межэтажных перекрытий, шумозащитные окна, малошумные лифты
Light-in - в квартирах устанавливаются широкоформатные окна, увеличены на 30%. Высота подоконников на уровне 60 см от пола.
Vent-in - в каждой комнате есть клапаны индивидуальной вентиляции, которые обеспечивают приток свежего воздуха с улицы.
inHOME умный дом в каждой квартире
Интеллектуальная цифровая система, которая позволит дистанционно решать бытовые вопросы, управлять квартирой и экономить на оплате коммунальных услуг.
В состав inHOME входят: IP-домофон, Face key, "умные" счетчики, датчики протечки, дистанционное отключение розеток, и т.д.
Паркинг
Подземный паркинг с доступом на лифте
Локация
- м. Звездная и м. Купчино 10 мин. на машине
- КАД 5 мин. на машине
- Пулково 15 мин. на машине
- Невский проспект 35 мин. на машине. #ZMd5c5